Dane techniczne
- Powierzchnia użytkowa 210.56 m²
- Powierzchnia zabudowy 182.44 m²
- Kubatura 675.00 m³
- Kąt nachylenia dachu 2.00°
- Powierzchnia dachu 225.77 m²
- Wysokość budynku 7.45 m
- Min. wymiary działki 22.50x26.40 m
- Garaż 22.77 m²
- Pracownia LK & Projekt
Technologia budowy
- Wentylacja: mechaniczna z rekuperacją
- Sposób ogrzewania: kocioł na gaz
- Okna i drzwi balkonowe: PVC firmy Oknoplast
- Strop: żelbetowy
- Konstrukcja dachu: żelbetowa, wg. systemu firmy Bauder
- Pokrycie dachu: warstwą żwiru płukanego
- Elewacje: wykończone tynkiem silikonowym, na fragmentach cegła klinkierowa Terca Stratus firmy Wienerberger
- Ławy fundamentowe: żelbetowe
- Ściany fundamentowe: z pustaków szalunkowych o gr.24 i 30 cm, ocieplone styropianem 'Gold Fundament' firmy Termo Organika o gr. 18 cm
- Ściany wewnętrzne: z bloczków Silka E o gr. 24 i 12 cm firmy Xella
- Ściany zewnętrzne: z bloczków z betonu komórkowego Ytong Energo o gr. 48 cm firmy Xella
- Koszt orientacyjny (bez Vat): 682 050.00 zł.
Opis
Nowoczesny, piętrowy dom jednorodzinny, z jednostanowiskowym garażem.
Rzuty
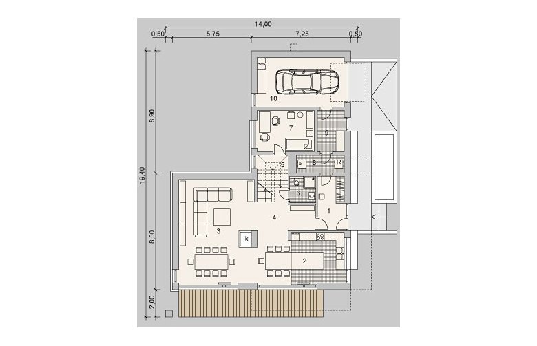
PARTER
- Powierzchnia użytkowa 101,76 m2
- Sień 7,64 m2
- Kuchnia z jadalnią 21,81 m2
- Pokój dzienny 42,39 m2
- Hall 11,18 m2
- Hall 2 2,79 m2
- Łazienka 2 3,65 m2
- Sypialnia 12,30 m2
- Kotłownia 4,58 m2
- Pomieszczenie gospodarcze 5,85 m2
- Garaż 22,77 m2
PIĘTRO
- Powierzchnia użytkowa 108,80 m2
- Hall 16,84 m2
- Garderoba 12,71 m2
- Pralnia 2,35 m2
- Łazienka 12,63 m2
- Sypialnia 15,96 m2
- Sypialnia 2 16,12 m2
- Sypialnia 3 19,25 m2
- Garderoba 2 6,48 m2
- Łazienka 2 6,46 m2
Rzuty
PARTER
- Powierzchnia użytkowa 101,76 m2
- Sień 7,64 m2
- Kuchnia z jadalnią 21,81 m2
- Pokój dzienny 42,39 m2
- Hall 11,18 m2
- Hall 2 2,79 m2
- Łazienka 2 3,65 m2
- Sypialnia 12,30 m2
- Kotłownia 4,58 m2
- Pomieszczenie gospodarcze 5,85 m2
- Garaż 22,77 m2
PIĘTRO
- Powierzchnia użytkowa 108,80 m2
- Hall 16,84 m2
- Garderoba 12,71 m2
- Pralnia 2,35 m2
- Łazienka 12,63 m2
- Sypialnia 15,96 m2
- Sypialnia 2 16,12 m2
- Sypialnia 3 19,25 m2
- Garderoba 2 6,48 m2
- Łazienka 2 6,46 m2
Dbamy o swoich Klientów, jak nikt inny!
Do każdego projektu zakupionego za pośrednictwem serwisu kreoDOM.pl otrzymasz książeczkę z rabatami na zakupy w firmach Komfort, Fachowiec, Domino Łazienki, Komandor, Witek Home i innych. Książeczka na pewno okaże się przydatna podczas urządzania Twojego wymarzonego domu!
Książeczka z rabatami do takich firm jak: Komfort, Domino Łazienki, Fachowiec, Vox, Komandor, Witek Home i innych
Gwarancja
bezpiecznych zakupów
Dodatkowe pakiety projektowe
- Kosztorys inwestorski cena ustalana indywidualnie
- Kolektory słoneczne cena ustalana indywidualnie
- Kominek z DGP cena ustalana indywidualnie
- Wentylacja mechaniczna z rekuperacją cena ustalana indywidualnie
- Pompa ciepła cena ustalana indywidualnie