Dane techniczne
- Powierzchnia użytkowa 281.01 m²
- Powierzchnia zabudowy 397.28 m²
- Kubatura 1351.41 m³
- Kąt nachylenia dachu 35.00°
- Powierzchnia dachu 420.28 m²
- Wysokość budynku 10.26 m
- Min. wymiary działki 37.95x27.20 m
- Garaż 45.00 m²
- Pracownia LK & Projekt
Technologia budowy
- Wentylacja: mechaniczna z rekuperacją
- Okna i drzwi balkonowe: drewniane
- Sposób ogrzewania: pompa ciepła, ogrzewanie cwu wspomagana kolektorami słonecznymi firmy Velux
- Pokrycie dachu: dachówka ceramiczna Koramic firmy Wienerberger
- Elewacje: wykończone tynkiem silikonowym, częściowo obłożone kamieniem naturalnym i drewnem
- Strop: żelbetowy
- Konstrukcja dachu: drewniana, ocieplona wełną mineralną gr. 28 cm firmy 'Rockwool'
- Ławy fundamentowe: żelbetowe
- Ściany fundamentowe: betonowe o gr.25, 38 cm
- Ściany zewnętrzne: z pustaków ceramicznych 'Porotherm 44 Si' ocieplone wełną mineralną firmy Rockwool o gr. 6 cm
- Ściany wewnętrzne: z pustaków ceramicznych o gr.12 cm, 25 cm
- Koszt orientacyjny (bez Vat): 909811.00 zł.
Opis
Dom jednorodzinny, piętrowy z dwustanowiskowym garażem.
Rzuty
PIWNICA
Piwnica
1. Pomieszczenie techniczne basenu 44.7m
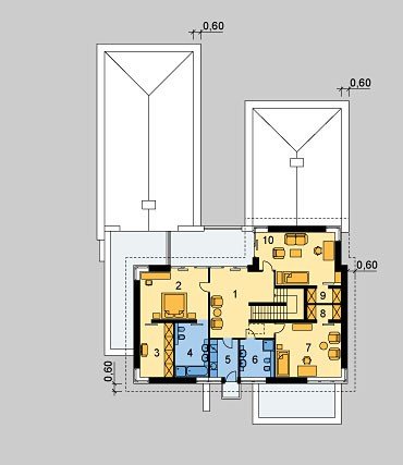
PARTER
Parter
1. Sień 10.92m
2. Hall 36.18m
3. Kuchnia 17.7m
4. Spiżarka 5.35m
5. Kotłownia 19.5m
6. Gabinet 14.1m
7. Korytarz
8. Korytarz 2 3.53m
9. Łazienka 4.31m
10. Sauna 4.29m
11. Basen 67.8m
12. Pokój dzienny 59.98m
13. Pomieszczenie gospodarcze 8.69m
14. Garaż 45m
PIĘTRO
Piętro
1. Hall 20.52m
2. Sypialnia 20.52m
3. Garderoba 11.37m
4. Łazienka 11.35m
5. Pralnia 6.72m
6. Łazienka 2 8.12m
7. Sypialnia 2 22.27m
8. Garderoba 2 3.15m
9. Garderoba 3 3.15m
10. Sypialnia 3
24.15m
Rzuty
PIWNICA
Piwnica
1. Pomieszczenie techniczne basenu 44.7m
PARTER
Parter
1. Sień 10.92m
2. Hall 36.18m
3. Kuchnia 17.7m
4. Spiżarka 5.35m
5. Kotłownia 19.5m
6. Gabinet 14.1m
7. Korytarz
8. Korytarz 2 3.53m
9. Łazienka 4.31m
10. Sauna 4.29m
11. Basen 67.8m
12. Pokój dzienny 59.98m
13. Pomieszczenie gospodarcze 8.69m
14. Garaż 45m
PIĘTRO
Piętro
1. Hall 20.52m
2. Sypialnia 20.52m
3. Garderoba 11.37m
4. Łazienka 11.35m
5. Pralnia 6.72m
6. Łazienka 2 8.12m
7. Sypialnia 2 22.27m
8. Garderoba 2 3.15m
9. Garderoba 3 3.15m
10. Sypialnia 3
24.15m
Dbamy o swoich Klientów, jak nikt inny!
Do każdego projektu zakupionego za pośrednictwem serwisu kreoDOM.pl otrzymasz książeczkę z rabatami na zakupy w firmach Komfort, Fachowiec, Domino Łazienki, Komandor, Witek Home i innych. Książeczka na pewno okaże się przydatna podczas urządzania Twojego wymarzonego domu!
Książeczka z rabatami do takich firm jak: Komfort, Domino Łazienki, Fachowiec, Vox, Komandor, Witek Home i innych
Gwarancja
bezpiecznych zakupów
Dodatkowe pakiety projektowe
- Kosztorys inwestorski cena ustalana indywidualnie
- Kolektory słoneczne cena ustalana indywidualnie
- Kominek z DGP cena ustalana indywidualnie
- Wentylacja mechaniczna z rekuperacją cena ustalana indywidualnie
- Pompa ciepła cena ustalana indywidualnie