Dane techniczne
- Powierzchnia użytkowa 399.10 m²
- Powierzchnia zabudowy 529.26 m²
- Kubatura 1712.34 m³
- Kąt nachylenia dachu 35.00°
- Powierzchnia dachu 842.70 m²
- Wysokość budynku 10.00 m
- Min. wymiary działki 48.55x36.33 m
- Garaż 85.48 m²
- Pracownia LK & Projekt
Technologia budowy
- Pokrycie dachu: dachówką ceramiczną 'Koramic' firmy 'Wienerberger'
- Elewacje: wykończone tynkiem silikonowym, obłożone kamieniem naturalnym, cegłą klinkierową firmy 'Wienerberger' i drewnem
- Konstrukcja dachu: drewniana ocieplona płytami firmy KINGSPAN o gr.13 cm
- Strop: żelbetowy
- Ściany wewnętrzne: z pustaków ceramicznych 'Porotherm' o gr.11,5 cm i 25 cm
- Ściany zewnętrzne: z pustaków ceramicznych 'Porotherm' o gr.30 cm, docieplone płytami firmy KINGSPAN o gr.18 cm i 15cm
- Ściany fundamentowe: betonowe gr. 30 cm ocieplone styropianem ekstrudowanym
- Ławy fundamentowe: żelbetowe
- Okna i drzwi balkonowe: drewniane, okna połaciowe firmy Fakro
- Sposób ogrzewania: pompa ciepła, ogrzewanie cwu wspomagana kolektorami słonecznymi firmy Viessmann
- Wentylacja: mechaniczna z rekuperacją
- Koszt budowy ogółem (bez VAT): 144 7913.49 zł.
- Instalacje: 314 600.00 zł.
- Roboty budowlane stanu wykończeniowego: 407 398.61 zł.
- Stolarka: 143 540.41 zł.
- Stan surowy zadaszony: 386 748.02 zł.
- Roboty budowlane stanu zerowego: 195 626.45 zł.
- Stan na kwartał: IV 2009 zł.
Opis
Dom jednorodzinny, piętrowy z trzystanowiskowym garażem.
Rzuty
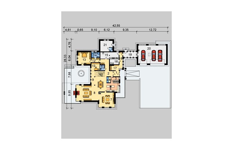
PARTER
Parter
1. Sień 5.15m
2. Hall 20m
3. Spiżarka 5.87m
4. Pomieszczenie techniczne 3.63m
5. Kuchnia 19.55m
6. Jadalnia 28.38m
7. Pokój telewizyjny 36.22m
8. Pokój dzienny 50.41m
9. Komunikacja 7.12m
10. Pokój 10.3m
11. WC 3.99m
12. Komunikacja 6.09m
13. Pokój gościnny 25.79m
14. Łazienka 7.77m
15. Pom. pompy ciepła/pralnia 20.61m
16. Kotłownia 8m
17. Garderoba 7.9m
18. Korytarz
8.23m
19. Przewiązka 11.44m
20. Garaż 85.48m
21. Pom.dla ogrodnika 22.33m
PIĘTRO
Piętro
1. Hall 21.58m
2. Sypialnia 17.17m
3. Łazienka 8.53m
4. Sypialnia 2 17.05m
5. Sypialnia 3
16.68m
6. Łazienka 2 12.53m
7. Garderoba 13.16m
8. Sypialnia 4 17.24m
Rzuty
PARTER
Parter
1. Sień 5.15m
2. Hall 20m
3. Spiżarka 5.87m
4. Pomieszczenie techniczne 3.63m
5. Kuchnia 19.55m
6. Jadalnia 28.38m
7. Pokój telewizyjny 36.22m
8. Pokój dzienny 50.41m
9. Komunikacja 7.12m
10. Pokój 10.3m
11. WC 3.99m
12. Komunikacja 6.09m
13. Pokój gościnny 25.79m
14. Łazienka 7.77m
15. Pom. pompy ciepła/pralnia 20.61m
16. Kotłownia 8m
17. Garderoba 7.9m
18. Korytarz
8.23m
19. Przewiązka 11.44m
20. Garaż 85.48m
21. Pom.dla ogrodnika 22.33m
PIĘTRO
Piętro
1. Hall 21.58m
2. Sypialnia 17.17m
3. Łazienka 8.53m
4. Sypialnia 2 17.05m
5. Sypialnia 3
16.68m
6. Łazienka 2 12.53m
7. Garderoba 13.16m
8. Sypialnia 4 17.24m
Dbamy o swoich Klientów, jak nikt inny!
Do każdego projektu zakupionego za pośrednictwem serwisu kreoDOM.pl otrzymasz książeczkę z rabatami na zakupy w firmach Komfort, Fachowiec, Domino Łazienki, Komandor, Witek Home i innych. Książeczka na pewno okaże się przydatna podczas urządzania Twojego wymarzonego domu!
Książeczka z rabatami do takich firm jak: Komfort, Domino Łazienki, Fachowiec, Vox, Komandor, Witek Home i innych
Gwarancja
bezpiecznych zakupów
Dodatkowe pakiety projektowe
- Kosztorys inwestorski cena ustalana indywidualnie
- Kolektory słoneczne cena ustalana indywidualnie
- Kominek z DGP cena ustalana indywidualnie
- Wentylacja mechaniczna z rekuperacją cena ustalana indywidualnie
- Pompa ciepła cena ustalana indywidualnie