Dane techniczne
- Powierzchnia użytkowa 530.80 m²
- Powierzchnia zabudowy 578.00 m²
- Kubatura 1940.00 m³
- Kąt nachylenia dachu 35.00°
- Powierzchnia dachu 269.10 m²
- Wysokość budynku 11.63 m
- Min. wymiary działki 36.00x36.40 m
- Garaż 80.22 m²
- Pracownia LK & Projekt
Technologia budowy
- Ściany wewnętrzne: z pustaków ceramicznych 'Porotherm' gr. 25, 11.5, 18,8 cm firmy Wienerberger
- Strop: żelbetowy, płytowy
- Pokrycie dachu: blacha tytan.-cynk.
- Konstrukcja dachu: dach skośny: konstrukcja drewniana, krokwiowo- płatwiowa + welna mineralna 'Toprock' o gr. 16 cm oraz welna mineralna 'Superrock' o gr. 12 cm firmy Rockwool; stropodach i daszki plaskie: pełne o tradycyjnym ukladzie warstw wg rozwiazan systemowych firmy B
- Elewacje: wykończone tynkiem silikonowym, okładzina z plyt włóknocementowych i desek 'Cedral' firmy Euronit
- Ściany zewnętrzne: z pustaków ceramicznych 'Porotherm' firmy Wienerberger o gr. 30 cm + styropian 'Platinum fasada' firmy Termo Organika o gr. 20 cm; pustak ceramiczny 'Porotherm' firmy Wienerberger o gr. 30 cm + welna mineralna 'Panelrock F' firmy Rockwool
- Ławy fundamentowe: żelbetowe
- Sposób ogrzewania: pompa ciepła, ogrzewanie podłogowe
- Okna i drzwi balkonowe: aluminiowe
- Ściany fundamentowe: z bloczków betonowych gr.25, 30 cm
- Wentylacja: mechaniczna z rekuperacją + GWC
- Koszt orientacyjny (bez Vat): 2 028 404.00 zł.
Opis
Nowoczesny, piętrowy dom jednorodzinny.
Rzuty
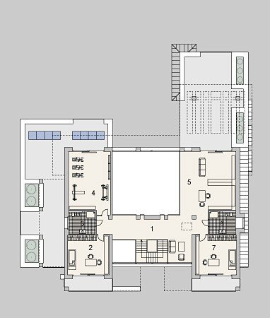
PARTER
Parter
1. Sień 31.17m
2. Garderoba/korytarz 6.96m
3. Łazienka 6.56m
4. Kuchnia 23.47m
5. Jadalnia 36.00m
6. Pokój dzienny 68.00m
7. Pralnia 25.23m
8. Kotłownia 18.37m
9. Gabinet 26.92m
10. Korytarz
15.95m
11. Sypialnia 13.33m
12. Łazienka 2 13.97m
13. Garderoba 2 6.83m
14. Garderoba 3 6.83m
15. Sypialnia 2 22.92m
16. Pomieszczenie gospodarcze 14.56m
17. Garaż 80.22m
PIĘTRO
Piętro
1. Hall 46.00m
2. Sypialnia 24.95m
3. Łazienka 9.78m
4. Fitness 39.83m
5. Biblioteka 53.00m
6. Łazienka 2 9.78m
7. Sypialnia 2 24.95m
Rzuty
PARTER
Parter
1. Sień 31.17m
2. Garderoba/korytarz 6.96m
3. Łazienka 6.56m
4. Kuchnia 23.47m
5. Jadalnia 36.00m
6. Pokój dzienny 68.00m
7. Pralnia 25.23m
8. Kotłownia 18.37m
9. Gabinet 26.92m
10. Korytarz
15.95m
11. Sypialnia 13.33m
12. Łazienka 2 13.97m
13. Garderoba 2 6.83m
14. Garderoba 3 6.83m
15. Sypialnia 2 22.92m
16. Pomieszczenie gospodarcze 14.56m
17. Garaż 80.22m
PIĘTRO
Piętro
1. Hall 46.00m
2. Sypialnia 24.95m
3. Łazienka 9.78m
4. Fitness 39.83m
5. Biblioteka 53.00m
6. Łazienka 2 9.78m
7. Sypialnia 2 24.95m
Dbamy o swoich Klientów, jak nikt inny!
Do każdego projektu zakupionego za pośrednictwem serwisu kreoDOM.pl otrzymasz książeczkę z rabatami na zakupy w firmach Komfort, Fachowiec, Domino Łazienki, Komandor, Witek Home i innych. Książeczka na pewno okaże się przydatna podczas urządzania Twojego wymarzonego domu!
Książeczka z rabatami do takich firm jak: Komfort, Domino Łazienki, Fachowiec, Vox, Komandor, Witek Home i innych
Gwarancja
bezpiecznych zakupów
Dodatkowe pakiety projektowe
- Kosztorys inwestorski cena ustalana indywidualnie
- Kolektory słoneczne cena ustalana indywidualnie
- Kominek z DGP cena ustalana indywidualnie
- Wentylacja mechaniczna z rekuperacją cena ustalana indywidualnie
- Pompa ciepła cena ustalana indywidualnie