Dane techniczne
- Powierzchnia użytkowa 220.96 m²
- Powierzchnia zabudowy 182.90 m²
- Kubatura 801.96 m³
- Kąt nachylenia dachu 25.00°
- Powierzchnia dachu 266.60 m²
- Wysokość budynku 9.42 m
- Min. wymiary działki 19.50x27.80 m
- Pracownia LK & Projekt
Technologia budowy
- Wentylacja: mechaniczna z rekuperacją
- Konstrukcja dachu: drewniana
- Pokrycie dachu: blachą tytan.-cynk.
- Sposób ogrzewania: pompa ciepła
- Okna i drzwi balkonowe: aluminiowe
- Elewacje: wykończone tynkiem silikonowym, elewacje systemowe firmy Euronit, cokoły tarasów wykończone trawertynem
- Ściany wewnętrzne: z bloczków Silka E gr. 24 i 12 cm firmy Xella
- Strop: żelbetowy
- Ławy fundamentowe: żelbetowe
- Ściany fundamentowe: betonowe
- Ściany zewnętrzne: z bloczków z betonu komórkowego Ytong Energo gr.48 cm firmy Xella
- Koszt orientacyjny (bez Vat): 662 880.00 zł.
Opis
Nowoczesny, piętrowy dom jednorodzinny.
Rzuty
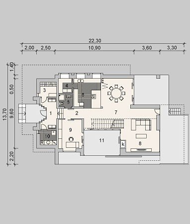
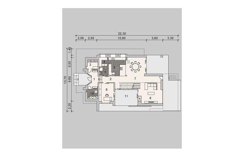
PARTER
Parter
1. Wiatrołap 8.26m
2. Hall 11.29m
3. Garderoba 4.56m
4. Spiżarka 4.07m
5. WC 3.47m
6. Kuchnia 14.48m
7. Jadalnia 15.40m
8. Pokój dzienny 27.53m
9. Gabinet 13.04m
10. Kotłownia 4.56m
11. Oranżeria 15.20m
PIĘTRO
Piętro
1. Hall 16.82m
2. Sypialnia 14.74m
3. Łazienka 8.12m
4. Sypialnia 2 15.20m
5. Sypialnia 3
20.57m
6. Łazienka 2 12.11m
7. Garderoba 5.74m
Rzuty
PARTER
Parter
1. Wiatrołap 8.26m
2. Hall 11.29m
3. Garderoba 4.56m
4. Spiżarka 4.07m
5. WC 3.47m
6. Kuchnia 14.48m
7. Jadalnia 15.40m
8. Pokój dzienny 27.53m
9. Gabinet 13.04m
10. Kotłownia 4.56m
11. Oranżeria 15.20m
PIĘTRO
Piętro
1. Hall 16.82m
2. Sypialnia 14.74m
3. Łazienka 8.12m
4. Sypialnia 2 15.20m
5. Sypialnia 3
20.57m
6. Łazienka 2 12.11m
7. Garderoba 5.74m
Dbamy o swoich Klientów, jak nikt inny!
Do każdego projektu zakupionego za pośrednictwem serwisu kreoDOM.pl otrzymasz książeczkę z rabatami na zakupy w firmach Komfort, Fachowiec, Domino Łazienki, Komandor, Witek Home i innych. Książeczka na pewno okaże się przydatna podczas urządzania Twojego wymarzonego domu!
Książeczka z rabatami do takich firm jak: Komfort, Domino Łazienki, Fachowiec, Vox, Komandor, Witek Home i innych
Gwarancja
bezpiecznych zakupów
Dodatkowe pakiety projektowe
- Kosztorys inwestorski cena ustalana indywidualnie
- Kolektory słoneczne cena ustalana indywidualnie
- Kominek z DGP cena ustalana indywidualnie
- Wentylacja mechaniczna z rekuperacją cena ustalana indywidualnie
- Pompa ciepła cena ustalana indywidualnie