Dane techniczne
- Powierzchnia użytkowa 140.18 m²
- Powierzchnia zabudowy 161.05 m²
- Kubatura 566.99 m³
- Kąt nachylenia dachu 42.00°
- Wysokość budynku 8.99 m
- Min. wymiary działki 25.60x22.30 m
- Garaż 39.52 m²
- Pracownia Archipelag
Technologia budowy
Fundamenty: ławy, bloczki betonowe 24 cm, ocieplenie styropian 15 cm
Ściany zewnętrzne: murowane, dwuwarstwowe, beton komórkowy 24 cm, ocieplenie wełna mineralna 20 cm
Ściany wewnętrzne: murowane, cegła wapienno-piaskowa, ściany nośne 24 cm, ścianki działowe 12 cm
Podłoga na gruncie: płyta betonowa, ocieplenie styropian 15 cm
Strop: strop międzypiętrowy gęstożebrowy Teriva
Dach: konstrukcja drewniana, ocieplenie wełna mineralna 30 cm, dachówka płaska lub inna o podobnych parametrach
Elewacja: tynk cienkowarstwowy mineralny, okładzina kamienna i drewniana
Stolarka: drewniana, PCV lub aluminiowa, rolety zewnętrzne w systemie CleverBox firmy BeClever
Okna połaciowe: rozwiązania technologiczne firmy Velux
Inne: ozdobne okiennice drewniane
Opis
Amaranta G2 ENERGO to dom, który emanuje nowoczesną elegancją. Szlachetna forma budynku została wzbogacona atrakcyjnymi lukarnami, dzięki czemu każda z sypialni na poddaszu zyskała słoneczny charakter i dostęp do balkonu. Reprezentacyjną strefą domu jest wygodny salon, harmonijnie połączony z rozległym tarasem. Na elewacji króluje chłód bieli i kamienia, który doskonale komponuje się z dekoracyjnymi okiennicami w kolorze czekoladowego drewna.
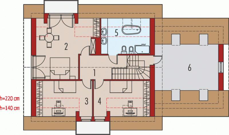
Rzuty
- Wiatrołap 4.07 m²
- Hol schody 16.21 m²
- Kuchnia 11.15 m²
- Spiżarnia 1.79 m²
- Pokój dzienny, jadalnia 29.52 m²
- Gabinet 10.63 m²
- Łazienka 2.66 m²
- Kotłownia 12.25 m²
- Garaż 39.52 m²
- Korytarz 8.17 m²
- Sypialnia 23.33 m²
- Sypialnia 11.68 m²
- Sypialnia 11.91 m²
- Łazienka 9.06 m²
- Strych 20.06 m²
Rzuty
- Wiatrołap 4.07 m²
- Hol schody 16.21 m²
- Kuchnia 11.15 m²
- Spiżarnia 1.79 m²
- Pokój dzienny, jadalnia 29.52 m²
- Gabinet 10.63 m²
- Łazienka 2.66 m²
- Kotłownia 12.25 m²
- Garaż 39.52 m²
- Korytarz 8.17 m²
- Sypialnia 23.33 m²
- Sypialnia 11.68 m²
- Sypialnia 11.91 m²
- Łazienka 9.06 m²
- Strych 20.06 m²
Dbamy o swoich Klientów, jak nikt inny!
Do każdego projektu zakupionego za pośrednictwem serwisu kreoDOM.pl otrzymasz książeczkę z rabatami na zakupy w firmach Komfort, Fachowiec, Domino Łazienki, Komandor, Witek Home i innych. Książeczka na pewno okaże się przydatna podczas urządzania Twojego wymarzonego domu!
Książeczka z rabatami do takich firm jak: Komfort, Domino Łazienki, Fachowiec, Vox, Komandor, Witek Home i innych
Gwarancja
bezpiecznych zakupów
Dodatkowe pakiety projektowe
- Kosztorys inwestorski cena ustalana indywidualnie
- Wentylacja mechaniczna z rekuperacją 700,00 zł
- Wentylacja mechaniczna + GPWC 700,00 zł
- Kolektory Słoneczne 400,00 zł
- Panele Fotowoltaiczne 400,00 zł
- Pompa Ciepła 500,00 zł
- Kominek z DGP 400,00 zł
- Biologiczna oczyszczalnia ścieków 150,00 zł
- Centralny Odkurzacz 300,00 zł
- Szambo przydomowe 200,00 zł
- Dodatkowy egzemplarz projektu 150,00 zł