Dane techniczne
- Powierzchnia użytkowa 142.82 m²
- Powierzchnia zabudowy 112.06 m²
- Kubatura 550.00 m³
- Kąt nachylenia dachu 40.00°
- Powierzchnia dachu 210.15 m²
- Wysokość budynku 8.08 m
- Min. wymiary działki 20.52x20.42 m
- Pracownia MTM Styl
Technologia budowy
Ściany: 2-warstwowe - pustak ceramiczny + styropian Termo Organika, Stropy: żelbetowe, wylewane, Dach: dachówka ceramiczna, kąt nachylenia 40°
Opis
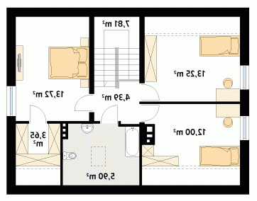
Tradycyjny dom mieszkalny. Ponadczasowa architektura domu nawiązująca do dobrych klasycznych wzorców polskiego domu mieszkalnego. Atutami projektu jest przestronne wnęrze z dodatkową sypialnia i łazienka na parterze oraz trzy wygodne sypialnie na poddaszu. Pod schodami zaprojektowano pomieszczenie gospodarcze-spiżarnię.
Dbamy o swoich Klientów, jak nikt inny!
Do każdego projektu zakupionego za pośrednictwem serwisu kreoDOM.pl otrzymasz książeczkę z rabatami na zakupy w firmach Komfort, Fachowiec, Domino Łazienki, Komandor, Witek Home i innych. Książeczka na pewno okaże się przydatna podczas urządzania Twojego wymarzonego domu!
Książeczka z rabatami do takich firm jak: Komfort, Domino Łazienki, Fachowiec, Vox, Komandor, Witek Home i innych
Gwarancja
bezpiecznych zakupów
Dodatkowe pakiety projektowe
- Kosztorys inwestorski 390.00
- Wentylacja mechaniczna z rekuperacją Bezpłatnie