Dane techniczne
- Powierzchnia użytkowa 116.80 m²
- Powierzchnia zabudowy 149.60 m²
- Kubatura 585.00 m³
- Kąt nachylenia dachu 30.00°
- Powierzchnia dachu 259.30 m²
- Wysokość budynku 6.63 m
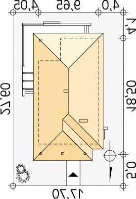
- Min. wymiary działki 17.70x27.60 m
- Pracownia MTM Styl
Technologia budowy
Ściany: 2-warstwowe - pustak ceramiczny + styropian, Stropy: żelbetowe, wylewane, Dach: dachówka ceramiczna, kąt nachylenia 30°
Opis
Budynek mieszkalny, jednorodzinny, parterowy przeznaczony dla 3-osobowej rodziny. Na parterze zaprojektowano dwie sypialnie, dwie łazienki, kotłownię, spiżarnię, kuchnię oraz pokój dzienny z jadalnią. Z pokoju dziennego mamy wyjście na przestronny, częściowo zadaszony taras.
Dbamy o swoich Klientów, jak nikt inny!
Do każdego projektu zakupionego za pośrednictwem serwisu kreoDOM.pl otrzymasz książeczkę z rabatami na zakupy w firmach Komfort, Fachowiec, Domino Łazienki, Komandor, Witek Home i innych. Książeczka na pewno okaże się przydatna podczas urządzania Twojego wymarzonego domu!
Książeczka z rabatami do takich firm jak: Komfort, Domino Łazienki, Fachowiec, Vox, Komandor, Witek Home i innych
Gwarancja
bezpiecznych zakupów
Dodatkowe pakiety projektowe
- Kosztorys inwestorski 390.00
- Wentylacja mechaniczna z rekuperacją Bezpłatnie