Dane techniczne
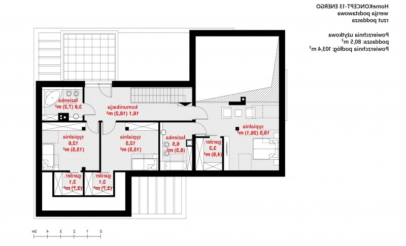
- Powierzchnia użytkowa 190.85 m²
- Powierzchnia zabudowy 193.24 m²
- Kubatura 1237.00 m³
- Kąt nachylenia dachu 35.00°
- Wysokość budynku 7.40 m
- Min. wymiary działki 26.95x22.10 m
- Garaż 40.93 m²
- Pracownia HomeKONCEPT
Technologia budowy
ŚCIANY dwuwarstwowe - pustak ceramiczny 25 cm + styropian
STROPY żelbetowe wylewane
SCHODY dwubiegowe żelbetowe
DACH łupek dachowy
| Stan surowy otwarty |
248 490 zł |
| Stan surowy zamknięty |
319 444 zł |
| Stan deweloperski |
536 364 zł |
| Stan deweloperski metodą gospodarczą |
375 455 zł |
Opis
HomeKoncept 13 to dom dla prawdziwych koneserów nowoczesności. Projekt ten charakteryzuje nietypowa bryła w kształcie litery C oraz oryginalna elewacja. Dom ma dużo unikatowych rozwiązań, m.in.: posiada antresolę, w której znajduje się sypialnia z przeszkleniem na salon oraz jednobiegowe schody wzdłuż przeszklonego holu.
Taras, który jest wcięty w bryłę domu i sąsiaduje z salonem, a z drugiej strony z gabinetem, można wyposażyć w piękną podświetloną roślinność. Jest to niezwykle piękny i efektowny widok. Na parterze zaprojektowano salon, kuchnię, jadalnię, łazienkę, pokój gościnny, pomieszczenie gospodarcze oraz małą garderobę. Na piętrze z kolei znajdziemy trzy sypialnie, trzy garderoby oraz dwie łazienki.
Dbamy o swoich Klientów, jak nikt inny!
Do każdego projektu zakupionego za pośrednictwem serwisu kreoDOM.pl otrzymasz książeczkę z rabatami na zakupy w firmach Komfort, Fachowiec, Domino Łazienki, Komandor, Witek Home i innych. Książeczka na pewno okaże się przydatna podczas urządzania Twojego wymarzonego domu!
Książeczka z rabatami do takich firm jak: Komfort, Domino Łazienki, Fachowiec, Vox, Komandor, Witek Home i innych
Gwarancja
bezpiecznych zakupów
Dodatkowe pakiety projektowe
- Szczegółowy kosztorys inwestorski 350,00
- Wentylacja mechaniczna z rekuperacją bezpłatnie
- Pompa ciepła z ogrzewaniem podłogowym 800,00 zł
- Ogrzewanie podłogowe 400,00 zł
- Kolektory Słoneczne 0
- Kominek z płaszczem wodnym 300,00 zł
- Szambo 250,00 zł
- Dodatkowy egzemplarz projektu 350,00 zł
- Kotłownia na paliwo stałe 350,00 zł
- Wentylacja grawitacyjna 350,00 zł