Dane techniczne
- Powierzchnia użytkowa 172.62 m²
- Powierzchnia zabudowy 157.41 m²
- Kubatura 1004.00 m³
- Kąt nachylenia dachu 43.00°
- Powierzchnia dachu 260.00 m²
- Wysokość budynku 9.11 m
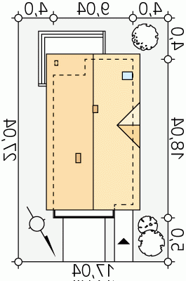
- Min. wymiary działki 17.04x27.04 m
- Garaż 33.68 m²
- Pracownia MTM Styl
Technologia budowy
Ściany: 2-warstwowe - bloczek TERMALICA 24 + styropian, Stropy: gęstożebrowe, Dach: dachówka, kąt nachylenia 43°
Koszty budowy (cena netto bez instalacji):
- fundamenty: 33619.00 zł
- stan-surowy: 188368.00 zł
- stolarka: 33265.00 zł
- koszt całkowity: 329059.00 zł
Opis
Dom z dwustanowiskowym garażem na dosyć wąską działkę. Na parterze, oprócz części dziennej, mamy spiżarnię dostępną z kuchni i łazienkę. Na poddaszu zaprojektowano trzy sypialnie, łazienkę z pralnią oraz dwie garderoby.
Dbamy o swoich Klientów, jak nikt inny!
Do każdego projektu zakupionego za pośrednictwem serwisu kreoDOM.pl otrzymasz książeczkę z rabatami na zakupy w firmach Komfort, Fachowiec, Domino Łazienki, Komandor, Witek Home i innych. Książeczka na pewno okaże się przydatna podczas urządzania Twojego wymarzonego domu!
Książeczka z rabatami do takich firm jak: Komfort, Domino Łazienki, Fachowiec, Vox, Komandor, Witek Home i innych
Gwarancja
bezpiecznych zakupów
Dodatkowe pakiety projektowe
- Kosztorys inwestorski 90.00
- Wentylacja mechaniczna z rekuperacją Bezpłatnie