Dane techniczne
- Powierzchnia użytkowa 194.64 m²
- Powierzchnia zabudowy 240.20 m²
- Kubatura 1072.00 m³
- Kąt nachylenia dachu 30.00°
- Powierzchnia dachu 280.00 m²
- Wysokość budynku 8.26 m
- Min. wymiary działki 32.16x18.52 m
- Garaż 56.00 m²
- Pracownia MTM Styl
Technologia budowy
Ściany: drewniane, szkieletowe, Stropy: belki drewniane + wełna mineralna, Dach: blacha na rąbek stojący Classic Ruukki, kąt nachylenia 30°
Koszty budowy (cena netto bez instalacji):
- fundamenty: 42277.00 zł
- stan-surowy: 365006.00 zł
- stolarka: 34394.00 zł
- koszt całkowity: 559473.00 zł
Opis
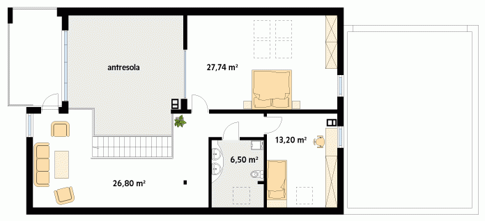
Nowoczesny dom mieszkalny. Bardzo ciekawa funkcja łącząca nowoczesność z tradycyjnym rozkładem funkcjonalnym wnętrza. Dodatkowo otwarty salon, antresola oraz duże przeszklenie nie zmieniają charakterystyki energetycznej obiektu, nadal jest to dom ciepły i energooszczędny.
Dbamy o swoich Klientów, jak nikt inny!
Do każdego projektu zakupionego za pośrednictwem serwisu kreoDOM.pl otrzymasz książeczkę z rabatami na zakupy w firmach Komfort, Fachowiec, Domino Łazienki, Komandor, Witek Home i innych. Książeczka na pewno okaże się przydatna podczas urządzania Twojego wymarzonego domu!
Książeczka z rabatami do takich firm jak: Komfort, Domino Łazienki, Fachowiec, Vox, Komandor, Witek Home i innych
Gwarancja
bezpiecznych zakupów
Dodatkowe pakiety projektowe
- Kosztorys inwestorski 90.00
- Wentylacja mechaniczna z rekuperacją Bezpłatnie