Dane techniczne
- Powierzchnia użytkowa 123.80 m²
- Powierzchnia zabudowy 100.00 m²
- Kubatura 517.00 m³
- Kąt nachylenia dachu 42.00°
- Powierzchnia dachu 173.00 m²
- Wysokość budynku 8.75 m
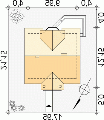
- Min. wymiary działki 17.95x21.15 m
- Pracownia MTM Styl
Technologia budowy
Ściany: 2-warstwowe - pustak ceramiczny + styropian, Stropy: żelbetowe, wylewane, Dach: gont bitumiczny lub blachodachówka, kąt nachylenia 42°
Koszty budowy (cena netto bez instalacji):
- fundamenty: 20991.00 zł
- stan-surowy: 114997.00 zł
- stolarka: 16697.00 zł
- koszt całkowity: 196647.00 zł
Opis
Dom jednorodzinny, wolno stojący, parterowy z użytkowym poddaszem. Pomimo niewielkich gabarytów zapewnia wygodę 4 – 5-osobowej rodzinie. Budynek o zwartej bryle z tradycyjnie ukształtowanym dachem.
Dbamy o swoich Klientów, jak nikt inny!
Do każdego projektu zakupionego za pośrednictwem serwisu kreoDOM.pl otrzymasz książeczkę z rabatami na zakupy w firmach Komfort, Fachowiec, Domino Łazienki, Komandor, Witek Home i innych. Książeczka na pewno okaże się przydatna podczas urządzania Twojego wymarzonego domu!
Książeczka z rabatami do takich firm jak: Komfort, Domino Łazienki, Fachowiec, Vox, Komandor, Witek Home i innych
Gwarancja
bezpiecznych zakupów
Dodatkowe pakiety projektowe
- Kosztorys inwestorski 90.00
- Wentylacja mechaniczna z rekuperacją Bezpłatnie