Dane techniczne
- Powierzchnia użytkowa 91.30 m²
- Powierzchnia zabudowy 76.81 m²
- Kubatura 468.28 m³
- Kąt nachylenia dachu 42.00°
- Powierzchnia dachu 84.00 m²
- Wysokość budynku 7.26 m
- Min. wymiary działki 9.75x22.15 m
- Pracownia MTM Styl
Technologia budowy
Ściany: 2-warstwowe - pustak ceramiczny + styropian, Stropy: żelbetowe, wylewane, Dach: blacha na rąbek stojący Classic Ruukki, kąt nachylenia 42°
Koszty budowy (cena netto bez instalacji):
- fundamenty: 18956.00 zł
- stan-surowy: 88185.00 zł
- stolarka: 12977.00 zł
- koszt całkowity: 173731.00 zł
Opis
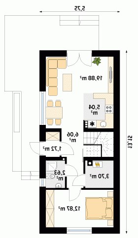
Projekt powstał z myślą o inwestorach, którzy planują zbudować dom w technologii murowanej. Wewnątrz domu zaprojektowano trzy sypialnie oraz dwie łazienki. Warto zwrócić uwagę na praktyczne usytuowanie garderoby.
Dbamy o swoich Klientów, jak nikt inny!
Do każdego projektu zakupionego za pośrednictwem serwisu kreoDOM.pl otrzymasz książeczkę z rabatami na zakupy w firmach Komfort, Fachowiec, Domino Łazienki, Komandor, Witek Home i innych. Książeczka na pewno okaże się przydatna podczas urządzania Twojego wymarzonego domu!
Książeczka z rabatami do takich firm jak: Komfort, Domino Łazienki, Fachowiec, Vox, Komandor, Witek Home i innych
Gwarancja
bezpiecznych zakupów
Dodatkowe pakiety projektowe
- Kosztorys inwestorski 90.00
- Wentylacja mechaniczna z rekuperacją Bezpłatnie