Dane techniczne
- Powierzchnia użytkowa 133.83 m²
- Powierzchnia zabudowy 151.95 m²
- Kubatura 575.20 m³
- Kąt nachylenia dachu 42.00°
- Powierzchnia dachu 164.50 m²
- Wysokość budynku 8.91 m
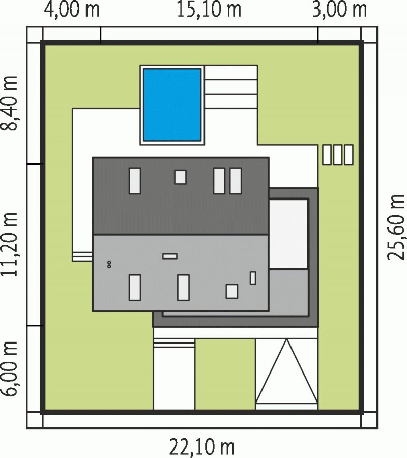
- Min. wymiary działki 22.10x25.60 m
- Garaż 20.68 m²
- Pracownia Archipelag
Technologia budowy
Technologia i konstrukcja
- Technologia murowana, ściany zewnętrzne dwuwarstwowe
- Bardzo dobra izolacja przegród zewnętrznych i przegród wewnętrznych:
- ściany zewnętrzne – izolacja: 20 cm warstwa wełny mineralnej
- dach i strop nad poddaszem – izolacja: 30 cm warstwa wełny mineralnej
- podłoga na gruncie – izolacja: 15 cm warstwa styropianu
- Strop gęstożebrowy
- Schody wewnętrzne drewniane
- Dach o konstrukcji drewnianej pokryto dachówką płaską lub inną o podobnych parametrach
- Dach nad garażem: stropodach odwrócony
- W projekcie zastosowano rozwiązania technologiczne firmy Fakro
Wykończenie
- Elewacje: tynk cienkowarstwowy mineralny i łupek kamienny oraz na fragmentach okładzina drewniana
- Stolarka okienna: drewniana, PCV lub aluminiowa
- Rolety zewnętrzne w systemie CleverBox firmy BeClever
Opis
Santiago G1 ENERGO to dom, który spełni oczekiwania miłośników nowoczesnego designu w parze z funkcjonalnością. Piękna elewacja ubiera bryłę w atrakcyjne ramy. Ascetyczną biel tynku wzbogacono dekoracyjnym kamieniem oraz elementami drewna w kolorze ciemnej wiśni, które dodaje formie ciepła i harmonijnie koresponduje z barwą stolarki. Na szczególną uwagę zasługuje pomysłowo wykorzystana przestrzeń nad garażem, która spełnia się jako wygodny taras, dostępny z głównej sypialni. Dodatkowa strefa rekreacyjna zapewnia domownikom relaksujący klimat z widokiem na balsamiczną zieleń krajobrazu. W domu zaprojektowanym w zgodzie z aktualnymi trendami nie zabrakło dużych przeszkleń, które otwierają wnętrze na otoczenie, wykorzystują naturalną energię słoneczną i zapewniają optymalne doświetlenie pomieszczeń.
Rzuty
PARTER
- Wiatrołap 2.52 m2
- Hol schody 13.58 m2
- Kuchnia 10.16 m2
- Spiżarnia 1.33 m2
- Pokój dzienny jadalnia 34.84 m2
- Łazienka 2.71 m2
- Garderoba 3.60 m2
- Gabinet 11.17 m2
- Kotłownia 4.93 m2
- Pom. gospodarcze 8.12 m2
- Garaż 20.68 m2
PODDASZE
- Korytarz 6.31 m2
- Sypialnia 12.11 m2
- Garderoba 4.57 m2
- Sypialnia 11.43 m2
- Sypialnia 11.47 m2
- Łazienka 8.58 m2
Rzuty
PARTER
- Wiatrołap 2.52 m2
- Hol schody 13.58 m2
- Kuchnia 10.16 m2
- Spiżarnia 1.33 m2
- Pokój dzienny jadalnia 34.84 m2
- Łazienka 2.71 m2
- Garderoba 3.60 m2
- Gabinet 11.17 m2
- Kotłownia 4.93 m2
- Pom. gospodarcze 8.12 m2
- Garaż 20.68 m2
PODDASZE
- Korytarz 6.31 m2
- Sypialnia 12.11 m2
- Garderoba 4.57 m2
- Sypialnia 11.43 m2
- Sypialnia 11.47 m2
- Łazienka 8.58 m2
Dbamy o swoich Klientów, jak nikt inny!
Do każdego projektu zakupionego za pośrednictwem serwisu kreoDOM.pl otrzymasz książeczkę z rabatami na zakupy w firmach Komfort, Fachowiec, Domino Łazienki, Komandor, Witek Home i innych. Książeczka na pewno okaże się przydatna podczas urządzania Twojego wymarzonego domu!
Książeczka z rabatami do takich firm jak: Komfort, Domino Łazienki, Fachowiec, Vox, Komandor, Witek Home i innych
Gwarancja
bezpiecznych zakupów
Dodatkowe pakiety projektowe
- Kosztorys inwestorski cena ustalana indywidualnie
- Wentylacja mechaniczna z rekuperacją 700,00 zł
- Wentylacja mechaniczna + GPWC 700,00 zł
- Kolektory Słoneczne 400,00 zł
- Panele Fotowoltaiczne 400,00 zł
- Pompa Ciepła 500,00 zł
- Kominek z DGP 400,00 zł
- Biologiczna oczyszczalnia ścieków 150,00 zł
- Centralny Odkurzacz 300,00 zł
- Szambo przydomowe 200,00 zł
- Dodatkowy egzemplarz projektu 150,00 zł