Dane techniczne
- Powierzchnia użytkowa 151.53 m²
- Powierzchnia zabudowy 153.26 m²
- Kubatura 855.00 m³
- Kąt nachylenia dachu 20.00°
- Powierzchnia dachu 136.80 m²
- Wysokość budynku 8.58 m
- Min. wymiary działki 24.28x19.33 m
- Garaż 31.70 m²
- Pracownia MTM Styl
Technologia budowy
Ściany: 3-warstwowe - pustak ceramiczny + styropian, na poddaszu - ściany 2 warstwowe, Stropy: żelbetowe, wylewane, Dach: dachówka, kąt nachylenia 20°
Koszty budowy (cena netto bez instalacji):
- fundamenty: 53369.00 zł
- stan-surowy: 185811.00 zł
- stolarka: 27565.00 zł
- koszt całkowity: 325104.00 zł
Opis
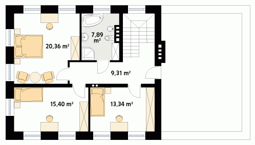
Dom jednorodzinny, dwukondygnacyjny z garażem dwustanowiskowym, niepodpiwniczony. Dzięki dwóm pełnym kondygnacjom istnieje możliwość łatwej aranżacji pomieszczeń. Na piętrze znajdują się trzy sypialnie i łazienka.
Dbamy o swoich Klientów, jak nikt inny!
Do każdego projektu zakupionego za pośrednictwem serwisu kreoDOM.pl otrzymasz książeczkę z rabatami na zakupy w firmach Komfort, Fachowiec, Domino Łazienki, Komandor, Witek Home i innych. Książeczka na pewno okaże się przydatna podczas urządzania Twojego wymarzonego domu!
Książeczka z rabatami do takich firm jak: Komfort, Domino Łazienki, Fachowiec, Vox, Komandor, Witek Home i innych
Gwarancja
bezpiecznych zakupów
Dodatkowe pakiety projektowe
- Kosztorys inwestorski 90.00
- Wentylacja mechaniczna z rekuperacją Bezpłatnie