Fundamenty - ławy fundamentowe wylewane i ściany fundamentowe z bloczków betonowych
Ściany – jednowarstwowe: bloczek gazobetonowy
Strop – gęstożebrowy
Pokrycie dachu – dachówka
Elewacja – tynk strukturalny, okładzina drewniana.
Stolarka okienna drewniana lub PCV.
Orientacyjny koszt budowy:
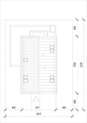
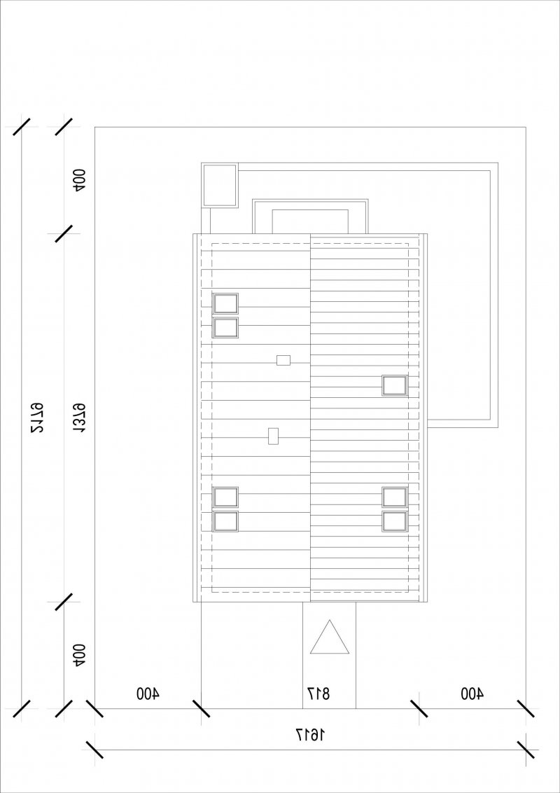
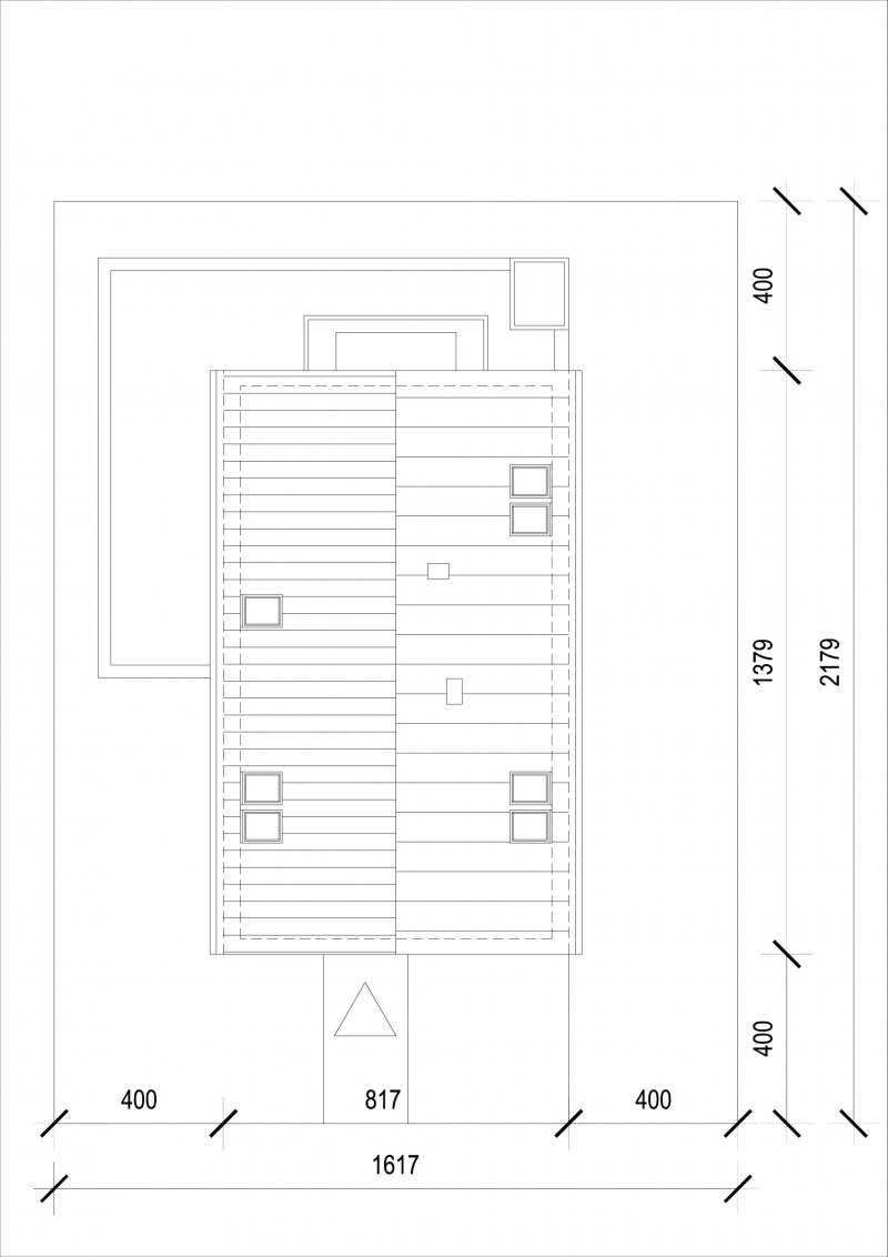
Alfi Nowoczesny, wygodny, parterowy dom z użytkowym poddaszem i wbudowanym garażem jednostanowiskowym.Dom został zaprojektowany z naciskiem na funkcjonalność, prostotę rozwiązań i konstrukcji oraz zastosowanie rozwiązań energooszczędnych. Prosta, ale jednocześnie nowoczesna forma domu sprawia, że jest tani i łatwy w realizacji.Istnieje możliwość wybudowania domu na wąskiej działce.
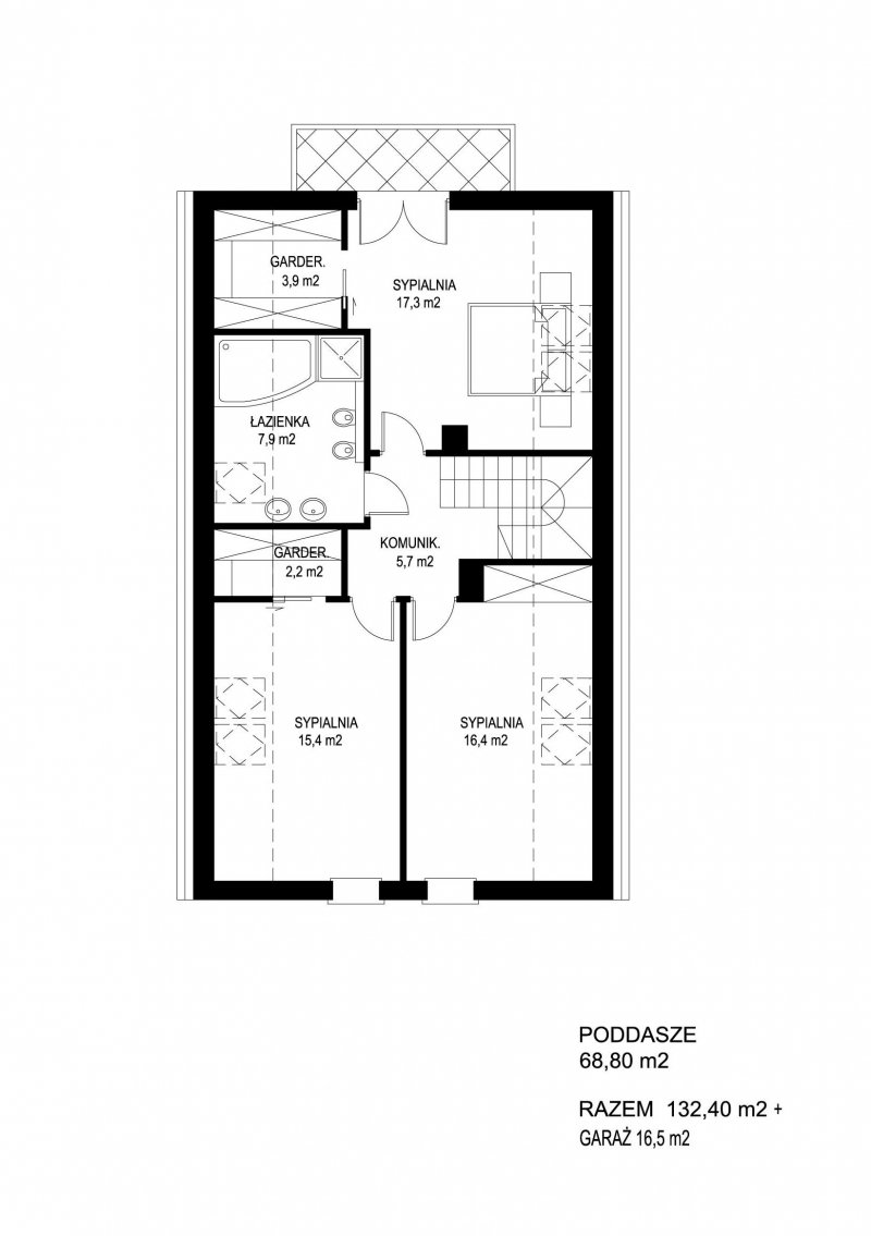
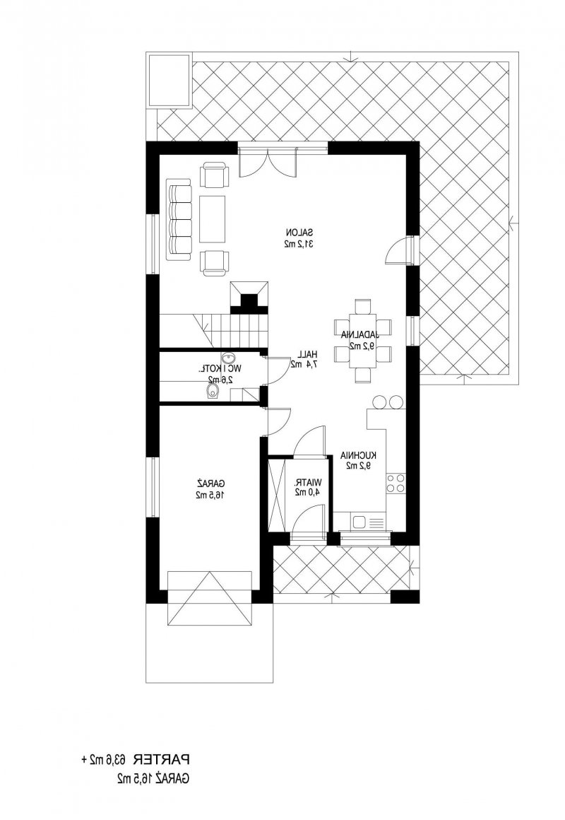
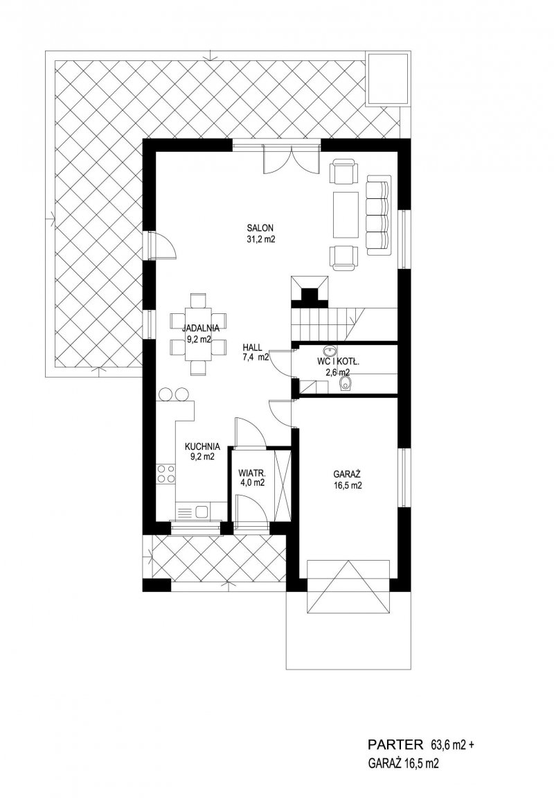
Część dzienna na parterze składa się z wiatrołapu, hallu, kuchni, jadalni, salon, WC z kotłownią. Od strony frontowej zlokalizowano wbudowany, jednostanowiskowy garaż. Część nocną na poddaszu tworzą: trzy duże sypialnie, w tym dwie z własnymi garderobami, hall i wygodna łazienka. Wszystkie sypialnie i łazienka będą doświetlone za pomocą okien połaciowych, dodatkowo dwie sypialnie od strony frontowej posiadają okna w ścianie szczytowej, a sypialnia rodziców duże przeszklone drzwi wychodzące na balkon od strony ogrodu.Projekt dostępny także w lustrzanym odbiciu.