Dane techniczne
- Powierzchnia użytkowa 112.90 m²
- Powierzchnia zabudowy 105.43 m²
- Kubatura 648.00 m³
- Kąt nachylenia dachu 42.00°
- Powierzchnia dachu 184.00 m²
- Wysokość budynku 8.20 m
- Min. wymiary działki 21.85x16.85 m
- Garaż 19.55 m²
- Pracownia MTM Styl
Technologia budowy
Ściany: 2-warstwowe - pustak ceramiczny + styropian, Stropy: żelbetowe, wylewane, Dach: blacha na rąbek stojący Classic Ruukki, kąt nachylenia 42°
Koszty budowy (cena netto bez instalacji):
- fundamenty: 24576.00 zł
- stan-surowy: 132354.00 zł
- stolarka: 18184.00 zł
- koszt całkowity: 220550.00 zł
Opis
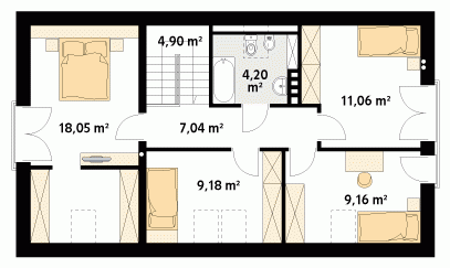
Niewielki ale wygodny dom na wąską działkę. Prosta, nowoczesna bryła przekryta dwuspadowym dachem oraz tradycyjna technologia budowy czynią dom tanim i dostępnym. Zlokalizowana na parterze część dzienna mieści w sobie pokój dzienny z jadalnią i kuchnię, dodatkowo znajdują się tu: łazienka, kotłownia i jednostanowiskowy garaż. Na poddaszu znajdują się: cztery, dobrze doświetlone sypialnie, jedna z garderobą i łazienka. Do bryły domu przylega letni salon – rozległy taras. Dom ma niewielkie wymiary i z powodzeniem zmieści się na wąskiej działce, także z wjazdem od południa.
Dbamy o swoich Klientów, jak nikt inny!
Do każdego projektu zakupionego za pośrednictwem serwisu kreoDOM.pl otrzymasz książeczkę z rabatami na zakupy w firmach Komfort, Fachowiec, Domino Łazienki, Komandor, Witek Home i innych. Książeczka na pewno okaże się przydatna podczas urządzania Twojego wymarzonego domu!
Książeczka z rabatami do takich firm jak: Komfort, Domino Łazienki, Fachowiec, Vox, Komandor, Witek Home i innych
Gwarancja
bezpiecznych zakupów
Dodatkowe pakiety projektowe
- Kosztorys inwestorski 90.00
- Wentylacja mechaniczna z rekuperacją Bezpłatnie