Technologia i wykończenie:
Fundamenty: ławy, bloczki betonowe 24 cm, ocieplenie styropian 10 cm
Ściany zewnętrzne: murowane, dwuwarstwowe, beton komórkowy 24 cm, ocieplenie 12 cm
Ściany wewnętrzne: murowane, cegła wapienno-piaskowa, ściany nośne 24 cm, ścianki działowe 12 cm
Podłoga na gruncie: płyta betonowa, ocieplenie styropian 10 cm
Strop i stropodach nad garażem: strop międzypiętrowy gęstożebrowy Teriva
Dach: konstrukcja drewniana, ocieplenie wełna mineralna 25 cm, dachówka cementowa IBF
Elewacja: tynk cienkowarstwowy mineralny
Stolarka: drewniana, PCV lub aluminiowa, rolety zewnętrzne w systemie CleverBox firmy BeClever
Okna połaciowe: rozwiązania technologiczne firmy Fakro
Blanka G1 Mocca to dom, w którym szlachetna forma perfekcyjnie łączy się z optymalnie zorganizowaną funkcją. Prosta bryła budynku, wzbogacona lukarną i wykuszem doskonale prezentuje się wspólnie z subtelną kompozycją elewacji, która dodaje całości przytulnego wdzięku. We wnętrzu czeka na domowników czytelny podział stref. Na parterze zaplanowano przestronny salon z kominkiem, jadalnię w przeszklonym wykuszu oraz częściowo otwartą kuchnię z praktyczną spiżarnią. Nie zabrakło również miejsca na wygodny gabinet oraz obszerną część gospodarczą. Na poddaszu mieści się zaciszna strefa nocna, którą tworzą trzy komfortowe sypialnie oraz łazienka i pralnia.
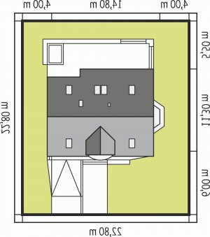
Charakterystyka: dom parterowy z poddaszem użytkowym, niepodpiwniczony, z garażem jednostanowiskowym
Przeznaczenie: dom dla 3-5-osobowej rodziny
Układ funkcjonalny:
Strefa dzienna – parter: salon z kominkiem, kuchnia oraz jadalnia
Dodatkowo na parterze: gabinet, spiżarnia, łazienka, wnęka na dużą garderobę, duża kotłownia i garaż
Strefa nocna – poddasze: dwie duże sypialnie, komfortowa sypialnia główna oraz łazienka
Dodatkowo na poddaszu: pralnia
Dostępne wersje:
- Blanka G1 – inne wykończenie elewacji, z garażem jednostanowiskowym
- Odbicie lustrzane do każdej wersji