Dane techniczne
					
						- Powierzchnia użytkowa 164.38 m²
- Powierzchnia zabudowy 144.42 m²
- Kubatura 835.00 m³
- Kąt nachylenia dachu 38.00°
- Powierzchnia dachu 265.00 m²
- Wysokość budynku 8.38 m
- Min. wymiary działki 24.48x20.24 m
- Garaż 21.85 m²
- Pracownia MTM Styl
 
				
					Technologia budowy
					Ściany: 3-warstwowe - pustak ceramiczny + styropian, Stropy: żelbetowe, wylewane, Dach: dachówka ceramiczna, kąt nachylenia 38°
Koszty budowy  (cena netto bez instalacji):
- fundamenty: 45089.00 zł
- stan-surowy: 189560.00 zł
- stolarka: 21416.00 zł
- koszt całkowity: 311491.00 zł
 
				
					
Opis
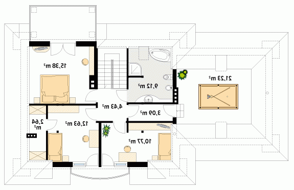
					 Dom mieszkalny, jednorodzinny, parterowy z użytkowym poddaszem dla 4 – 5-osobowej rodziny. Na parterze zaprojektowano pokój dzienny z kominkiem, aneksem jadalnym, łazienkę oraz dodatkowy pokój. Na poddaszu są trzy sypialnie, garderoby i łazienka oraz dodatkowy pokój hobby. Zwarty budynek o interesującej architekturze.
				
								
												
				
			 
			
			
			
				Dbamy o swoich Klientów, jak nikt inny!
Do każdego projektu zakupionego za pośrednictwem serwisu kreoDOM.pl otrzymasz książeczkę z rabatami na zakupy w firmach Komfort, Fachowiec, Domino Łazienki, Komandor, Witek Home i innych. Książeczka na pewno okaże się przydatna podczas urządzania Twojego wymarzonego domu!
Książeczka z rabatami do takich firm jak: Komfort, Domino Łazienki, Fachowiec, Vox, Komandor, Witek Home i innych
 
 
Gwarancja
bezpiecznych zakupów
 
 
 
				
					
					
						Dodatkowe pakiety projektowe
												
															- Kosztorys inwestorski 90.00
- Wentylacja mechaniczna z rekuperacją 750