Ściany zewnętrzne 2-warstwowe : Beton komórkowy ( 24cm) / Pustak ceramiczny (25cm) + styropian 20cm Uściany < 0,20 W/(m2*K) – warunek spełniony.
Ławy fundamentowe tradycyjne. Ściany fundamentowe betonowe gr.24(25cm) z bloczków betonowych lub wylewane.
Stropy - płyta żelbetowa . Zamiennie można zastosować strop gęstożeberkowy typu TERIVA .
Konstrukcja dachu - tradycyjna drewniana , pokrycie dachu z dachówki ceramicznej.
Elewacje - pokryte tynkiem strukturalnym cienkowarstwowym.
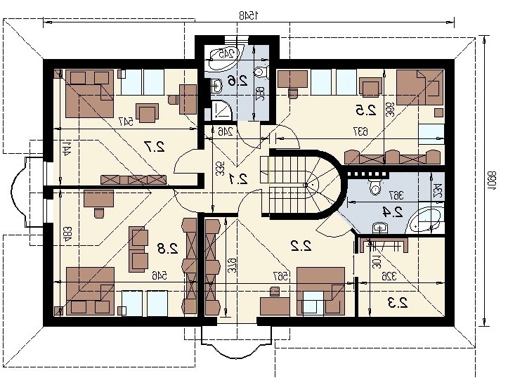
Dom z poddaszem użytkowym. Ten projekt należy do serii najbardziej popularnych projektów. Front domu może być sytuowany od strony południowej z uwagi na umiejscowienie salonu. Kuchnia z jadalnią znajdują się od strony ogrodu. Bryła budynku jest prosta w realizacji. Jak w większości projektów, strefa dzienna została zaprojektowana na parterze, strefa nocna w skład której wchodzą sypialnie i pomieszczenia sanitarne znajduje się na poddaszu. dom posiada garaż na 2 samochody osobowe.
Istnieje wersja projektu z garażem 1-stanowiskowym: dj 12.
Energooszczędność:
Wersja standardowa:
Projekt spełnia wymagania cieplne dla nowo projektowanych domów określone w wt2008 ( rozporządzenie ministra infrastruktury dotyczące "warunków technicznych ,jakim powinny odpowiadać budynki i ich usytuowanie )
charakterystyka energetyczna w granicach 120 [kwh/m2/rok]
Wersja energooszczędna:
Projekt dostępny w wersji energooszczędnej .czas realizacji zamówienia 10dni.
charakterystyka energetyczna w granicach 75 [kwh/m2/rok]
projekt w tej wersji posiada instalację wentylacji z odzyskiem ciepła oraz zmodyfikowane grubości izolacji fundamentów,podłóg,ścian, stropów i dachu.
1.1 Przedsionek 4.11
1.2 Hall 13.25
1.3 Pokój dzienny 34.08
5 Kuchnia z aneksem 22.69
1.6 Łazienka 6.82
1.7 Pokój 10.78
1.8 Pom. gospodarcze 10.78
1.9 Garaż 2 st. 40.26