Ściany zewnętrzne 2-warstwowe : Beton komórkowy ( 24cm) / Pustak ceramiczny (25cm) + styropian 20cm Uściany < 0,20 W/(m2*K) – warunek spełniony.
Ławy fundamentowe tradycyjne. Ściany fundamentowe betonowe gr.24(25cm) z bloczków betonowych lub wylewane.
Stropy - płyta żelbetowa . Zamiennie można zastosować strop gęstożeberkowy typu TERIVA .
Konstrukcja dachu - tradycyjna drewniana , pokrycie dachu z dachówki ceramicznej.
Elewacje - pokryte tynkiem strukturalnym cienkowarstwowym.
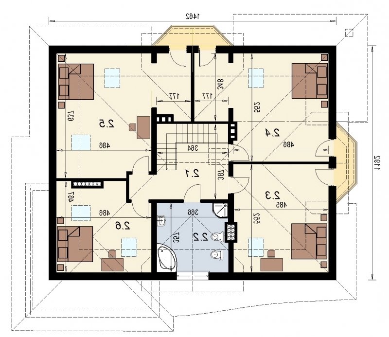
Dom tradycyjny z poddaszem użytkowym, podpiwniczony. Cechą charakterystyczną projektu są duże, obszerne pomieszczenia oraz zgrabna i funkcjonalna architektura. Na parterze została zaprojektowana część dzienna, na poddaszu znajduje się część nocna. Dom posiada wygodny garaż na 2 samochody osobowe. projekty podobne: dj 44,dj 179, dj 64.
Energooszczędność:
Wersja standardowa:
Projekt spełnia wymagania cieplne dla nowo projektowanych domów określone w wt2008 ( rozporządzenie ministra infrastruktury dotyczące "warunków technicznych ,jakim powinny odpowiadać budynki i ich usytuowanie )
Charakterystyka energetyczna w granicach 120 [kwh/m2/rok]
Wersja energooszczędna:
Projekt dostępny w wersji energooszczędnej .czas realizacji zamówienia 10dni.
charakterystyka energetyczna w granicach 75 [kwh/m2/rok]
projekt w tej wersji posiada instalację wentylacji z odzyskiem ciepła oraz zmodyfikowane grubości izolacji fundamentów,podłóg,ścian, stropów i dachu.
1.1 PRZEDSIONEK 3.89
1.2 POM. TECHNICZNE 2.48
1.3 HALL 21.90
1.4 SPIŻARNIA 2.79
1.5 KUCHNIA 12.95
1.6 SALON 45.98
1.7 POKÓJ 16.37
1.8 ŁAZIENKA 4.62
1.9 POM. GOSPODARCZE 3.34
1.10GARAŻ 36.78
2.1 PRZEDPOKÓJ 10.97
2.2 ŁAZIENKA 12.86
2.3 SYPIALNIA 18.09
2.4 SYPIALNIA 24.65
2.5 SYPIALNIA 25.07
2.6 SYPIALNIA 11.16