Ściany zewnętrzne 2-warstwowe : Beton komórkowy ( 24cm) / Pustak ceramiczny (25cm) + styropian 20cm Uściany < 0,20 W/(m2*K) – warunek spełniony.
Ławy fundamentowe tradycyjne. Ściany fundamentowe betonowe gr.24(25cm) z bloczków betonowych lub wylewane.
Stropy - płyta żelbetowa . Zamiennie można zastosować strop gęstożeberkowy typu TERIVA .
Konstrukcja dachu - tradycyjna drewniana , pokrycie dachu z dachówki ceramicznej.
Elewacje - pokryte tynkiem strukturalnym cienkowarstwowym.
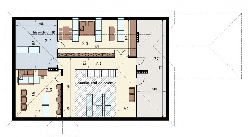
Obszerny dom parterowy z użytkowym poddaszem. Cechą charakterystyczną wnętrza stanowi pustka nad salonem. Projekty podobne : dj 18, dj 1.
Energooszczędność:
Wersja standardowa:
Projekt spełnia wymagania cieplne dla nowo projektowanych domów określone w wt2008 ( rozporządzenie ministra infrastruktury dotyczące "warunków technicznych ,jakim powinny odpowiadać budynki i ich usytuowanie )
charakterystyka energetyczna w granicach 120 [kwh/m2/rok]
Wersja energooszczędna:
Projekt dostępny w wersji energooszczędnej .czas realizacji zamówienia 10dni.
charakterystyka energetyczna w granicach 75 [kwh/m2/rok]
projekt w tej wersji posiada instalację wentylacji z odzyskiem ciepła oraz zmodyfikowane grubości izolacji fundamentów,podłóg,ścian, stropów i dachu.
1.1 PRZEDSIONEK 3.62
1.2 HALL 25.13
1.3 KUCHNIA 14.31
1.4 SALON 49.62
1.5 ŁAZIENKA 6.32
1.6 SYPIALNIA 26.50
1.7 SYPIALNIA 15.20
1.8 ŁAZIENKA 5.07
1.9 SYPIALNIA 15.17
1.10 POM. GOSPODARCZE 10.32
1.11 PRALNIA 7.18
1.12 WC 3.29
1.13 GARAŻ 2 ST. 51.26