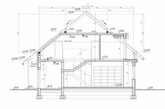
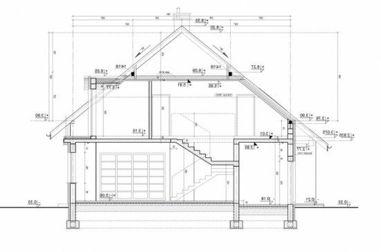
Ściany zewnętrzne 2-warstwowe : Beton komórkowy ( 24cm) / Pustak ceramiczny (25cm) + styropian 20cm Uściany < 0,20 W/(m2*K) – warunek spełniony.
Ławy fundamentowe tradycyjne. Ściany fundamentowe betonowe gr.24(25cm) z bloczków betonowych lub wylewane.
Stropy - płyta żelbetowa . Zamiennie można zastosować strop gęstożeberkowy typu TERIVA .
Konstrukcja dachu - tradycyjna drewniana , pokrycie dachu z dachówki ceramicznej.
Elewacje - pokryte tynkiem strukturalnym cienkowarstwowym.
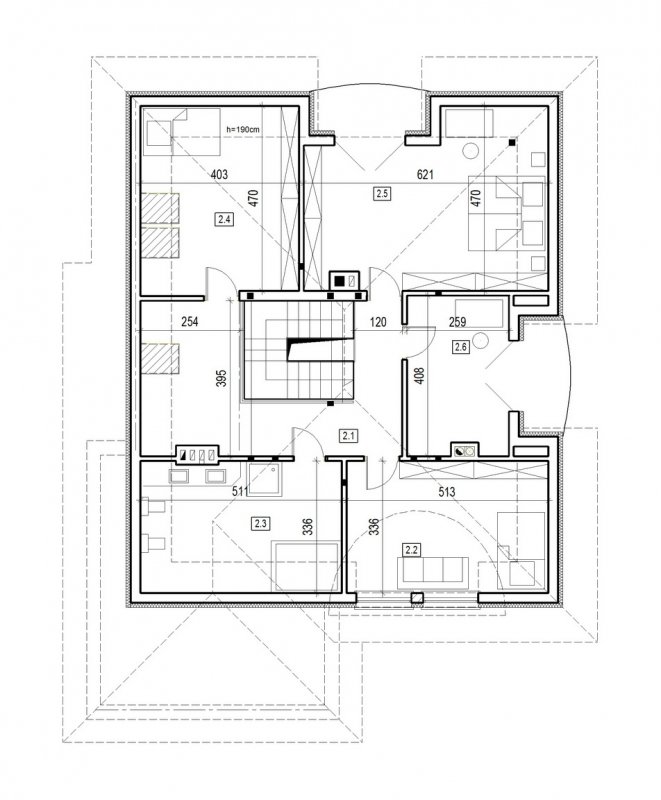
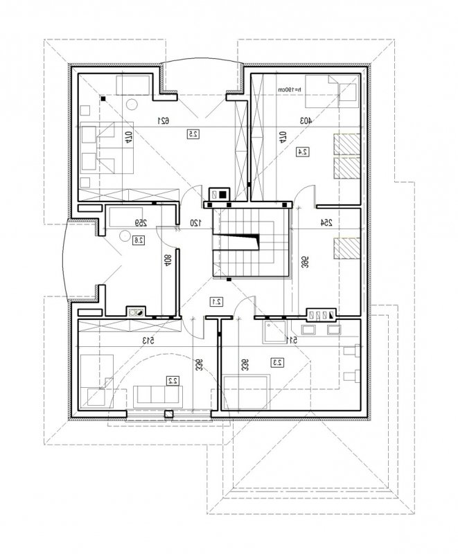
Dom z poddaszem zaprojektowany na wąską działkę o minimalnej szerokości 18.1m. Parter ma charakter otwarty. Obszerna kuchnia z wyspą, jadalnia oraz salon tworzą jedną przestrzeń. Umiejscowiony w centralnym miejscu kominek może być wykonany w stylu nowoczesnym i stanowić element nowoczesnej architektury wnętrza. Na poddasze prowadzą wygodne schody 3-biegowe, któe można wykonać w stylu nowoczesnym ( np. ażurowe). Garaż zaprojektowano na 2 samochody osobowe. na poddaszu zaprojektowano 3 sypialnie wraz z łazienką.
Energooszczędność:
Wersja standardowa:
Projekt spełnia wymagania cieplne dla nowo projektowanych domów określone w wt2008 ( rozporządzenie ministra infrastruktury dotyczące "warunków technicznych ,jakim powinny odpowiadać budynki i ich usytuowanie)
charakterystyka energetyczna w granicach 120 [kwh/m2/rok]
Wersja energooszczędna:
Projekt dostępny w wersji energooszczędnej .czas realizacji zamówienia 10dni.
charakterystyka energetyczna w granicach 75 [kwh/m2/rok]
projekt w tej wersji posiada instalację wentylacji z odzyskiem ciepła oraz zmodyfikowane grubości izolacji fundamentów,podłóg,ścian, stropów i dachu.
1.1 WIATROŁAP 5.2
1.2 HALL 8.9
1.3 SCHOWEK 5.9
1.4 KUCHNIA 13.7
1.5 JADALNIA 18.0
1.6 POKÓJ DZIENNY 25.2
1.7 WC 3.7
1.8 POM.GOSPODARCZE 8.3
1.9 GARAŻ 2 ST. 33.9
razem pu. parteru (bez garażu) 88.9
z garażem 122.8