Dane techniczne
- Powierzchnia użytkowa 227.60 m²
- Powierzchnia zabudowy 193.30 m²
- Kubatura 920.00 m³
- Kąt nachylenia dachu 36.00°
- Wysokość budynku 8.50 m
- Min. wymiary działki 26.67x20.46 m
- Garaż 32.80 m²
- Pracownia Archdesign
Technologia budowy
PROPOZYCJE MATRIAŁOWE ZASTOSOWANE W PROJEKCIE (TECHNOLOGIA BUDOWY)
Opis
dom 2-pokoleniowy z poddaszem użytkowym. na parterze przewidziano dodatkowe mieszkanie (salon z aneksem kuchennym wraz z sypialnią ) dostępne ze wspólnego przedsionka. poddasze domu to część nocna z sypialniami oraz pomieszczeniami pomocniczymi. dom posiada garaż na 2 samochody osobowe.
energooszczędność:
wersja standardowa:
projekt spełnia wymagania cieplne dla nowo projektowanych domów określone w wt2008 ( rozporządzenie ministra infrastruktury dotyczące "warunków technicznych ,jakim powinny odpowiadać budynki i ich usytuowanie )
charakterystyka energetyczna w granicach 120 [kwh/m2/rok]
wersja energooszczędna:
projekt dostępny w wersji energooszczędnej .czas realizacji zamówienia 10dni.
charakterystyka energetyczna w granicach 75 [kwh/m2/rok]
projekt w tej wersji posiada instalację wentylacji z odzyskiem ciepła oraz zmodyfikowane grubości izolacji fundamentów,podłóg,ścian, stropów i dachu.
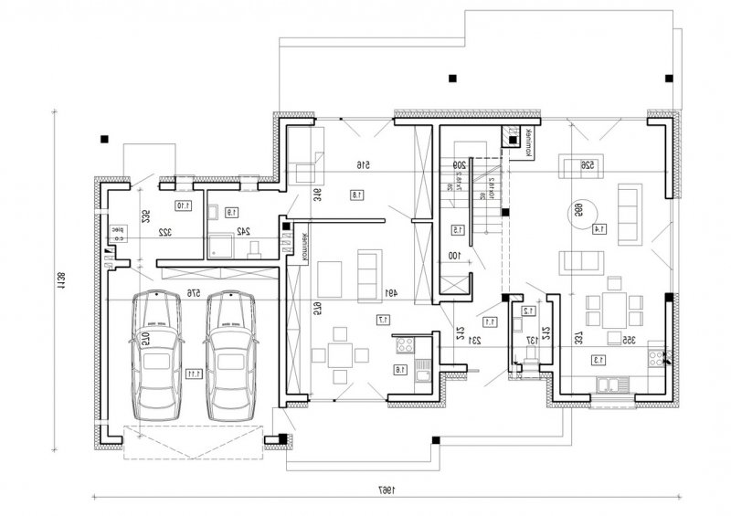
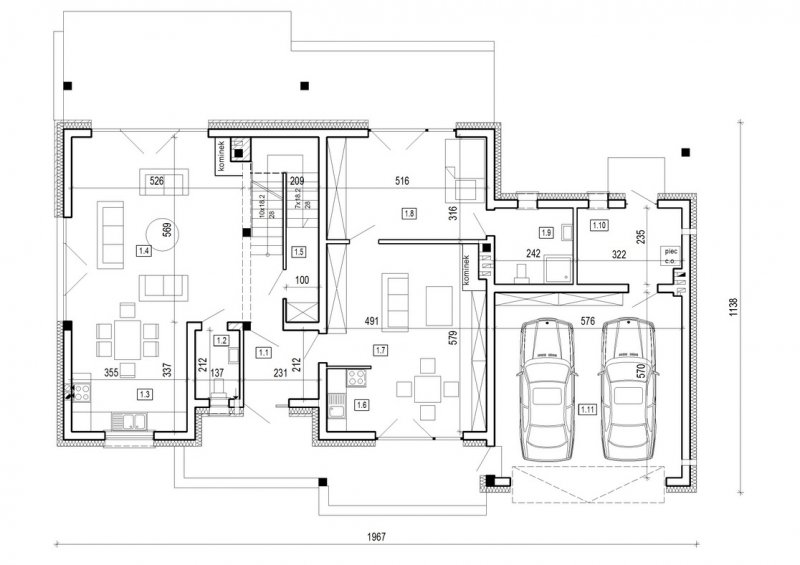
Rzuty
|1.1 PRZEDSIONEK 4.9
|1.2 WC 2.9
|1.3 KUCHNIA 12.0
|1.4 POKÓJ DZIENNY 32.9
|1.5 SCHOWEK 3.9
|1.6 WNĘKA KUCHENNA 2.6
|1.7 POKÓJ 25.4
|1.8 SYPIALNIA 15.5
|1.9 ŁAZIENKA 5.7
|1.10 POM.GOSPODARCZE 7.4
|1.11 GARAŻ 2 ST. 32.8
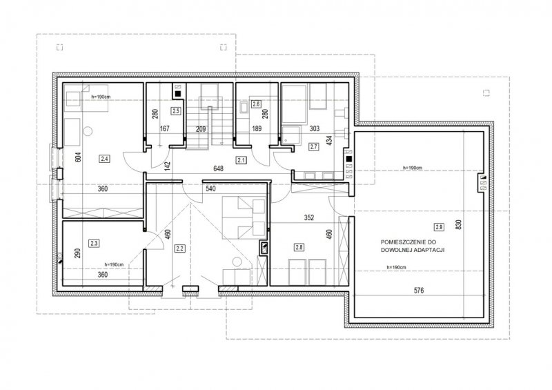
2.1 PRZEDPOKÓJ 9.4
2.2 SYPIALNIA 2 os. 23.5
2.3 GARDEROBA 7.6
2.4 SYPIALNIA 18.9
2.5 SCHOWEK 3.4
2.6 PRALNIA 3.8
2.7 ŁAZIENKA 9.5
2.8 SYPIALNIA 13.4
2.9 SCHOWEK 24.9
Rzuty
|1.1 PRZEDSIONEK 4.9
|1.2 WC 2.9
|1.3 KUCHNIA 12.0
|1.4 POKÓJ DZIENNY 32.9
|1.5 SCHOWEK 3.9
|1.6 WNĘKA KUCHENNA 2.6
|1.7 POKÓJ 25.4
|1.8 SYPIALNIA 15.5
|1.9 ŁAZIENKA 5.7
|1.10 POM.GOSPODARCZE 7.4
|1.11 GARAŻ 2 ST. 32.8
2.1 PRZEDPOKÓJ 9.4
2.2 SYPIALNIA 2 os. 23.5
2.3 GARDEROBA 7.6
2.4 SYPIALNIA 18.9
2.5 SCHOWEK 3.4
2.6 PRALNIA 3.8
2.7 ŁAZIENKA 9.5
2.8 SYPIALNIA 13.4
2.9 SCHOWEK 24.9
Dbamy o swoich Klientów, jak nikt inny!
Do każdego projektu zakupionego za pośrednictwem serwisu kreoDOM.pl otrzymasz książeczkę z rabatami na zakupy w firmach Komfort, Fachowiec, Domino Łazienki, Komandor, Witek Home i innych. Książeczka na pewno okaże się przydatna podczas urządzania Twojego wymarzonego domu!
Książeczka z rabatami do takich firm jak: Komfort, Domino Łazienki, Fachowiec, Vox, Komandor, Witek Home i innych
Gwarancja
bezpiecznych zakupów
Dodatkowe pakiety projektowe