Dane techniczne
- Powierzchnia użytkowa 201.90 m²
- Powierzchnia zabudowy 186.00 m²
- Kąt nachylenia dachu 35.00°
- Wysokość budynku 8.90 m
- Min. wymiary działki 24.34x23.00 m
- Garaż 32.60 m²
- Pracownia Archdesign
Technologia budowy
Opis
dom współczesny o tradycyjnej formie i z nowoczesnymi akcentami na elewacji. dostępna wersja z garażem 1-stanowiskowym. istnieje możliwość opracowania innej wersji tego projektu.
koncepcja projektowa wykonana na indywidualne zamówienie.
energooszczędność:
wersja standardowa:
projekt spełnia wymagania cieplne dla nowo projektowanych domów określone w wt2008 ( rozporządzenie ministra infrastruktury dotyczące "warunków technicznych ,jakim powinny odpowiadać budynki i ich usytuowanie )
charakterystyka energetyczna w granicach 120 [kwh/m2/rok]
wersja energooszczędna:
projekt dostępny w wersji energooszczędnej .czas realizacji zamówienia 10dni.
charakterystyka energetyczna w granicach 75 [kwh/m2/rok]
projekt w tej wersji posiada instalację wentylacji z odzyskiem ciepła oraz zmodyfikowane grubości izolacji fundamentów,podłóg,ścian, stropów i dachu.
Rzuty
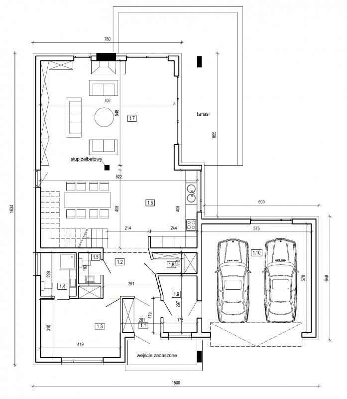
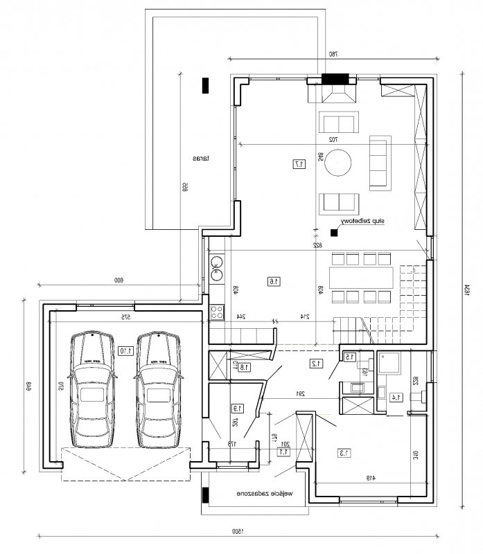
|1.1 Przedsionek 3.5
|1.2 Hall 6.0
|1.3 Gabinet 13.5
|1.4 Łazienka 4.1
|1.5 Wc 1.8
|1.6 Kuchnia z jadalnią 27.8
|1.7 Pokój dzienny 38.1
|1.8 Spiżarnia 2.3
|1.9 Pom. gospodarcze 5.3
|1.10 Garaż 2 st. 32.6
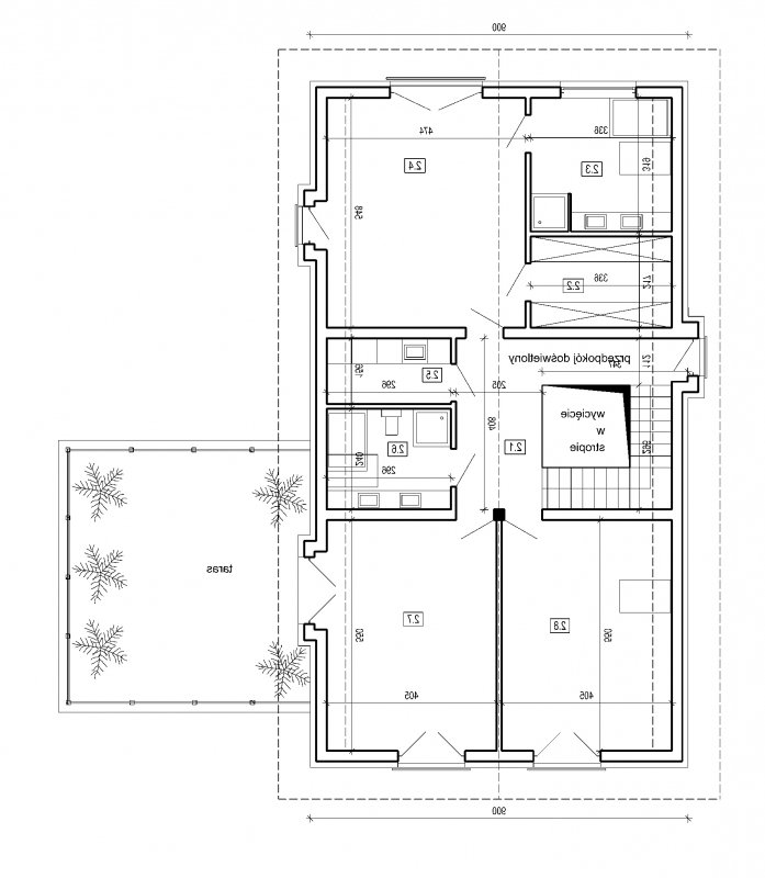
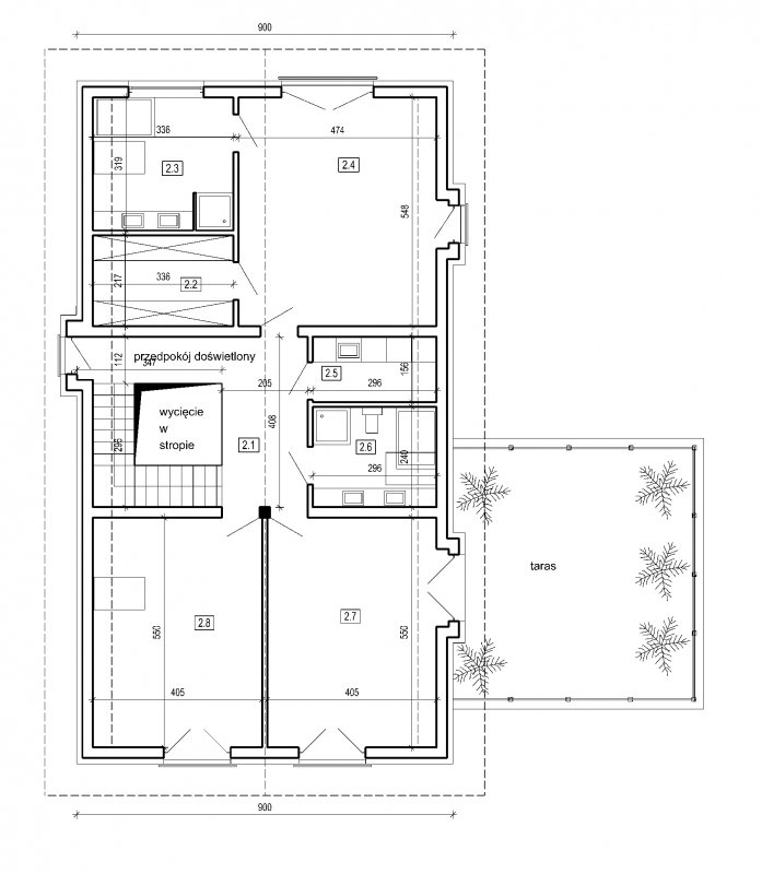
2.1 Przedpokój 12.0
2.2 Garderoba 6.1
2.3 Łazienka 9.1
2.4 Sypialnia 2os. 23.3
2.5 Pralnia 3.8
2.6 Łazienka 6.0
2.7 Sypialnia 19.6
2.8 Sypialnia 19.6
Rzuty
|1.1 Przedsionek 3.5
|1.2 Hall 6.0
|1.3 Gabinet 13.5
|1.4 Łazienka 4.1
|1.5 Wc 1.8
|1.6 Kuchnia z jadalnią 27.8
|1.7 Pokój dzienny 38.1
|1.8 Spiżarnia 2.3
|1.9 Pom. gospodarcze 5.3
|1.10 Garaż 2 st. 32.6
2.1 Przedpokój 12.0
2.2 Garderoba 6.1
2.3 Łazienka 9.1
2.4 Sypialnia 2os. 23.3
2.5 Pralnia 3.8
2.6 Łazienka 6.0
2.7 Sypialnia 19.6
2.8 Sypialnia 19.6
Dbamy o swoich Klientów, jak nikt inny!
Do każdego projektu zakupionego za pośrednictwem serwisu kreoDOM.pl otrzymasz książeczkę z rabatami na zakupy w firmach Komfort, Fachowiec, Domino Łazienki, Komandor, Witek Home i innych. Książeczka na pewno okaże się przydatna podczas urządzania Twojego wymarzonego domu!
Książeczka z rabatami do takich firm jak: Komfort, Domino Łazienki, Fachowiec, Vox, Komandor, Witek Home i innych
Gwarancja
bezpiecznych zakupów
Dodatkowe pakiety projektowe