Ściany zewnętrzne 2-warstwowe : Beton komórkowy ( 24cm) / Pustak ceramiczny (25cm) + styropian 20cm Uściany < 0,20 W/(m2*K) – warunek spełniony.
Ławy fundamentowe tradycyjne. Ściany fundamentowe betonowe gr.24(25cm) z bloczków betonowych lub wylewane.
Stropy - płyta żelbetowa . Zamiennie można zastosować strop gęstożeberkowy typu TERIVA .
Konstrukcja dachu - tradycyjna drewniana , pokrycie dachu z dachówki ceramicznej.
Elewacje - pokryte tynkiem strukturalnym cienkowarstwowym.
dom jednorodzinny z garażem 2 stanowiskowym przeznaczony na wąską działkę podmiejską.całkowicie podpiwniczony.dostępna również wersja bez podpiwniczenia.dom posiada wbudowany garaż na 2 samochody osobowe.
energooszczędność:
wersja standardowa:
projekt spełnia wymagania cieplne dla nowo projektowanych domów określone w wt2008 ( rozporządzenie ministra infrastruktury dotyczące "warunków technicznych ,jakim powinny odpowiadać budynki i ich usytuowanie )
charakterystyka energetyczna w granicach 120 [kwh/m2/rok]
wersja energooszczędna:
projekt dostępny w wersji energooszczędnej .czas realizacji zamówienia 10dni.
charakterystyka energetyczna w granicach 75 [kwh/m2/rok]
projekt w tej wersji posiada instalację wentylacji z odzyskiem ciepła oraz zmodyfikowane grubości izolacji fundamentów,podłóg,ścian, stropów i dachu.
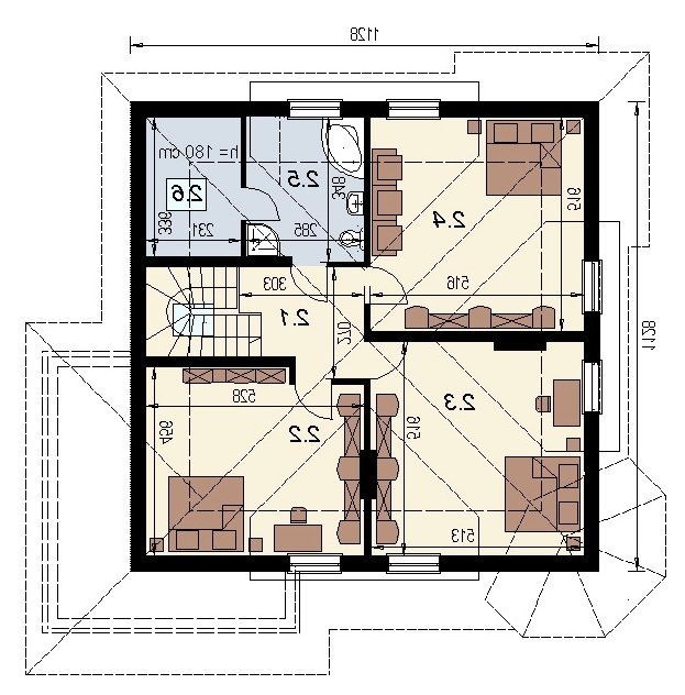
0.1 POM. GOSPODARCZE 35.91
0.2 POM. GOSPODARCZE 11.16
0.3 ŁAZIENKA 5.55
0.4 POM. GOSPODARCZE 5.27
0.5 POM. GOSPODARCZE 18.51
0.6 KOTŁOWNIA 6.89
1.1 PRZEDSIONEK 2.98
1.2 HALL 8.65
1.3 KUCHNIA Z ANEKSEM 18.92
1.4 SALON 32.28
1.5 POKÓJ 11.16
1.6 ŁAZIENKA 7.09
1.7 GARAŻ 33.09