Ściany zewnętrzne 2-warstwowe : Beton komórkowy ( 24cm) / Pustak ceramiczny (25cm) + styropian 20cm Uściany < 0,20 W/(m2*K) – warunek spełniony.
Ławy fundamentowe - tradycyjne. Ściany fundamentowe betonowe gr.24(25cm) z bloczków betonowych lub wylewane.
Stropy - płyta żelbetowa . Zamiennie można zastosować strop gęstożeberkowy typu TERIVA .
Konstrukcja dachu - tradycyjna drewniana , pokrycie dachu z dachówki ceramicznej.
Elewacje - pokryte tynkiem strukturalnym cienkowarstwowym.
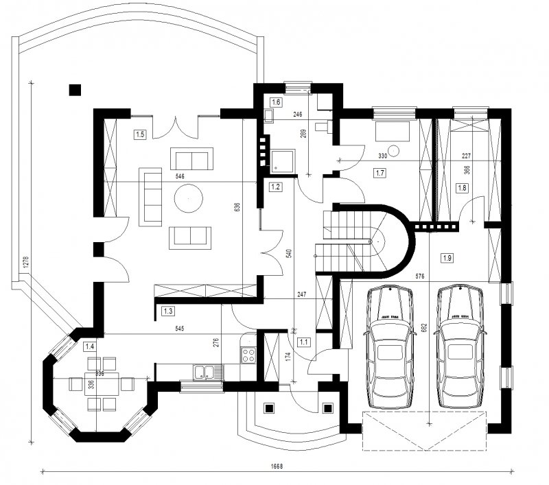
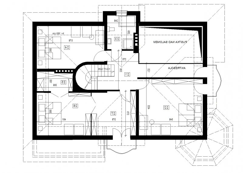
na parterze zlokalizowano strefę do pobytu dziennego, poddassze jest strefą typowo nocną z sypialniami oraz pomieszczeniami sanitarnymi i pomocniczymi. nad salonem znajduje się pustka.dom posiada wygodny garaż na 2 samochody. dostępna jest wersja projektu z częściowym podpiwniczeniem oraz wersja z powiększoną łazienką na poddaszu.
energooszczędność:
wersja standardowa:
projekt spełnia wymagania cieplne dla nowo projektowanych domów określone w wt2008 ( rozporządzenie ministra infrastruktury dotyczące "warunków technicznych ,jakim powinny odpowiadać budynki i ich usytuowanie )
charakterystyka energetyczna w granicach 120 [kwh/m2/rok]
wersja energooszczędna:
projekt dostępny w wersji energooszczędnej .czas realizacji zamówienia 10dni.
charakterystyka energetyczna w granicach 75 [kwh/m2/rok]
projekt w tej wersji posiada instalację wentylacji z odzyskiem ciepła oraz zmodyfikowane grubości izolacji fundamentów,podłóg,ścian, stropów i dachu.
1.1 PRZEDSIONEK 4.26
1.2 HALL 13.79
1.3 KUCHNIA 9.88
1.4 JADALNIA 12.39
1.5 SALON 34.69
1.6 ŁAZIENKA 6.82
1.7 PRACOWNIA 10.77
1.8 POM. GOSPODARCZE 8.29
1.9 GARAŻ 2 ST. 34.97
razem pu. parteru (bez garażu): 100.89
z garażem: 135.86