Ściany zewnętrzne 2-warstwowe : Beton komórkowy ( 24cm) / Pustak ceramiczny (25cm) + styropian 20cm Uściany < 0,20 W/(m2*K) – warunek spełniony.
Ławy fundamentowe tradycyjne. Ściany fundamentowe betonowe gr.24(25cm) z bloczków betonowych lub wylewane.
Stropy - płyta żelbetowa . Zamiennie można zastosować strop gęstożeberkowy typu TERIVA .
Konstrukcja dachu - tradycyjna drewniana , pokrycie dachu z dachówki ceramicznej.
Elewacje - pokryte tynkiem strukturalnym cienkowarstwowym.
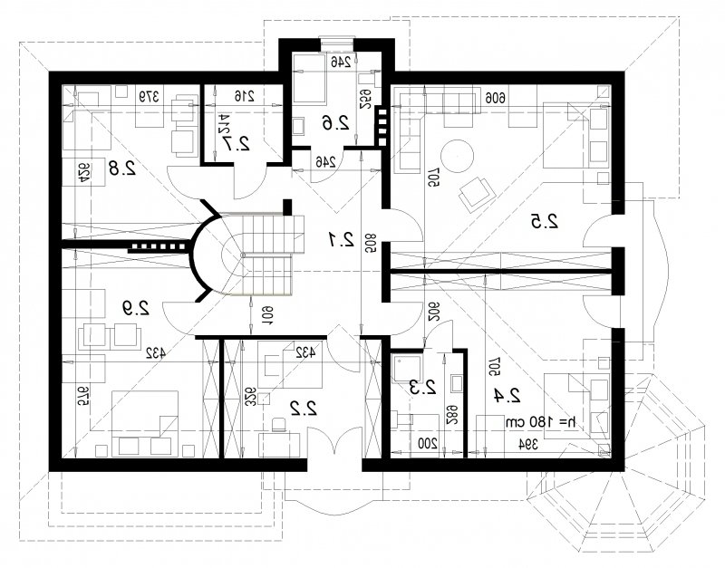
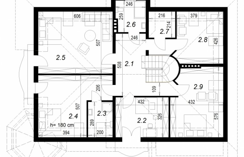
Dom z poddaszem użytkowym przeznaczony dla 5-6 osobowej rodziny. Na parterze zaprojektowano część dzienną, na poddaszu zlokalizowano 4 sypialnie oraz pomieszczenia sanitarne. Posiada również wbudowany garaż na 2 samochody osobowe. Dom powstał nabazie projektu DJ 111. Mniejsza wersja projektu z mniejszym metrażem to DJ 59.
Energooszczędność:
Wersja standardowa:
Projekt spełnia wymagania cieplne dla nowo projektowanych domów określone w wt2008 (rozporządzenie ministra infrastruktury dotyczące "warunków technicznych ,jakim powinny odpowiadać budynki i ich usytuowanie). Charakterystyka energetyczna w granicach 120 [kwh/m2/rok].
Wersja energooszczędna:
Projekt dostępny w wersji energooszczędnej. Czas realizacji zamówienia 10dni.
Charakterystyka energetyczna w granicach 75 [kwh/m2/rok].
Projekt w tej wersji posiada instalację wentylacji z odzyskiem ciepła oraz zmodyfikowane grubości izolacji fundamentów, podłóg, ścian, stropów i dachu.
1.1 PRZEDSIONEK 5.02
1.2 HALL 16.22
1.3 KUCHNIA 11.55
1.4 JADALNIA 13.37
1.5 SALON 41.49
1.6 ŁAZIENKA 6.13
1.7 WC 1.78
1.8 POM. GOSPODARCZE 9.88
1.9 GARAŻ 2 ST. 39.23
razem pu. bez garażu i pom. gosp. 108.57
z garażem i pom. gosp. 157.68