Ściany zewnętrzne 2-warstwowe: Beton komórkowy ( 24cm) / Pustak ceramiczny (25cm) + styropian 20cm Uściany < 0,20 W/(m2*K) – warunek spełniony.
Ławy fundamentowe tradycyjne: Ściany fundamentowe betonowe gr.24(25cm) z bloczków betonowych lub wylewane.
Stropy - płyta żelbetowa. Zamiennie można zastosować strop gęstożeberkowy typu TERIVA.
Konstrukcja dachu - tradycyjna drewniana, pokrycie dachu z dachówki ceramicznej.
Elewacje - pokryte tynkiem strukturalnym cienkowarstwowym.
Elementami wyrózniającymi ten dom spośród innych o architekturze typowej jest jadalnia dla 6 osób która została wysunięta i wyeksponowana na elewacji frontowej i bocznej. Jadalnia została doświetlona dużymi oknami z podziałkami o wysokości 230 cm. Ciekawy efekt wizualny powstał równiez poprzez wydłużenie połaci dachu podpartej słupem od strony elewacji tylniej. Dzięki temu taras domu jest częściowo zadaszony. Dom został zaprojektowany dla 5-6 osobowej rodziny. Parter jest strefą typowo dzienną, na poddaszu zlokalizowano strefę nocną: sypialnie oraz pomieszczenia sanitarne. Dom posiada garaż na 2 samochody osobowe. Dostępna jest wersja z podpiwniczeniem jak również bez podpiwniczenia.
Energooszczędność:
Wersja standardowa:
Projekt spełnia wymagania cieplne dla nowo projektowanych domów określone w WT2008 (Rozporządzenie Ministra Infrastruktury dotyczące "warunków technicznych, jakim powinny odpowiadać budynki i ich usytuowanie).
Charakterystyka energetyczna w granicach 120 [kWh/m2/rok]
Wersja energooszczędna:
Projekt dostępny w wersji energooszczędnej. Czas realizacji zamówienia 10dni.
Charakterystyka energetyczna w granicach 75 [kWh/m2/rok].
Projekt w tej wersji posiada instalację wentylacji z odzyskiem ciepła oraz zmodyfikowane grubości izolacji fundamentów, podłóg, ścian, stropów i dachu.
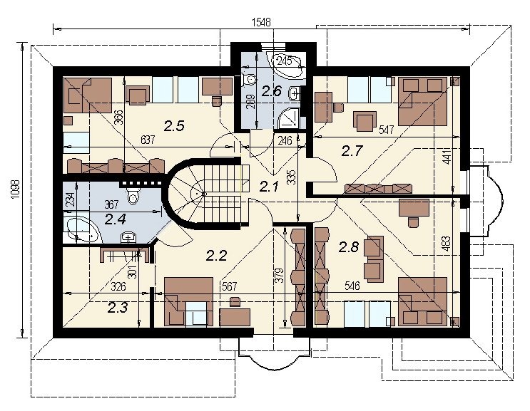
1.1 PRZEDSIONEK 4.27
1.2 HALL 12.84
1.3 KUCHNIA 9.74
1.4 JADALNIA 11.04
1.5 POKÓJ DZIENNY 34.92
1.6 ŁAZIENKA 6.82
1.7 POKÓJ 10.77
1.8 POM. GOSPODARCZE 10.56
1.9 GARAŻ 2 ST. 40.43
razem pu. parteru (bez garażu) 100.76
z garażem 141.19