Ściany zewnętrzne 2-warstwowe: Beton komórkowy ( 24cm) / Pustak ceramiczny (25cm) + styropian 20cm Uściany < 0,20 W/(m2*K) – warunek spełniony.
Ławy fundamentowe tradycyjne: Ściany fundamentowe betonowe gr.24 (25cm) z bloczków betonowych lub wylewane.
Stropy - płyta żelbetowa. Zamiennie można zastosować strop gęstożeberkowy typu TERIVA .
Konstrukcja dachu - tradycyjna drewniana, pokrycie dachu z dachówki ceramicznej.
Elewacje - pokryte tynkiem strukturalnym cienkowarstwowym.
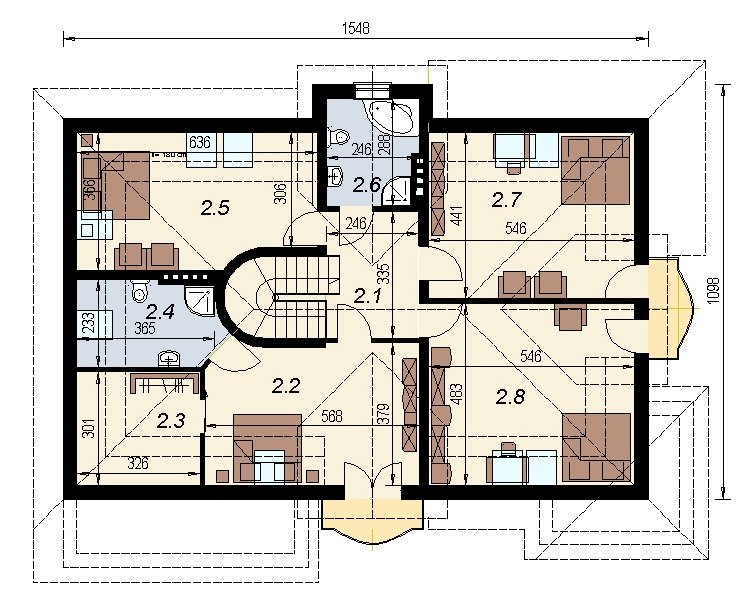
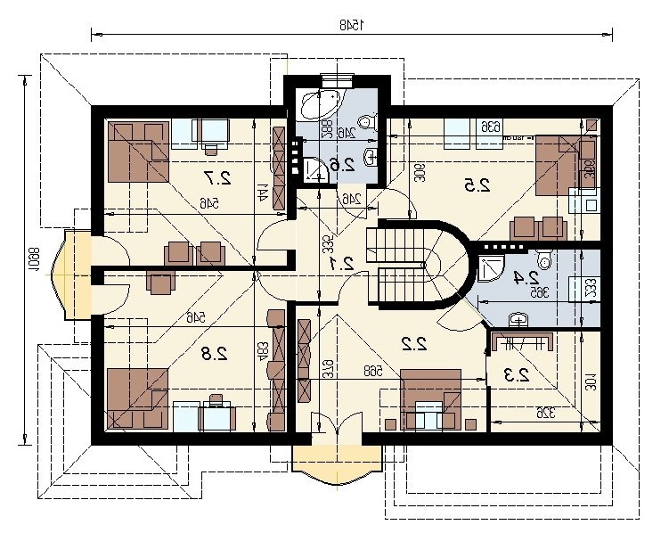
Elementami wyrózniającymi ten dom spośród innych o architekturze typowej jest zadaszony taras letni wyeksponowany na elewacji frontowej i bocznej. Taras podparty jest słupami i przykryty czterospadowym dachem o zwiększonym nachyleniu w stosunku do nachylenia dachu nad główną bryłą budynku. Dom został zaprojektowany dla 5-6 osobowej rodziny. Parter jest strefą typowo dzienną, na poddaszu zlokalizowano strefę nocną: sypialnie oraz pomieszczenia sanitarne. Dom posiada garaż na 2 samochody osobowe. Dostępna jest wersja projektu z częściowym podpiwniczeniem oraz wersja z powiększoną łazienką na poddaszu.
Energooszczędność:
Wersja standardowa:
Projekt spełnia wymagania cieplne dla nowo projektowanych domów określone w WT2008 (Rozporządzenie Ministra Infrastruktury dotyczące "warunków technicznych ,jakim powinny odpowiadać budynki i ich usytuowanie). Charakterystyka energetyczna w granicach 120 [kWh/m2/rok].
Wersja energooszczędna:
Projekt dostępny w wersji energooszczędnej .Czas realizacji zamówienia 10dni.
Charakterystyka energetyczna w granicach 75 [kWh/m2/rok]
Projekt w tej wersji posiada instalację wentylacji z odzyskiem ciepła oraz zmodyfikowane grubości izolacji fundamentów, podłóg, ścian, stropów i dachu.