Ściany zewnętrzne 2-warstwowe: Beton komórkowy ( 24cm) / Pustak ceramiczny (25cm) + styropian 20cm Uściany < 0,20 W/(m2*K) – warunek spełniony.
Ławy fundamentowe tradycyjne: Ściany fundamentowe betonowe gr.24(25cm) z bloczków betonowych lub wylewane.
Stropy: płyta żelbetowa. Zamiennie można zastosować strop gęstożeberkowy typu TERIVA .
Konstrukcja dachu: tradycyjna drewniana, pokrycie dachu z dachówki ceramicznej.
Elewacje: pokryte tynkiem strukturalnym cienkowarstwowym.
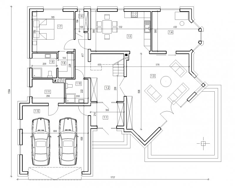
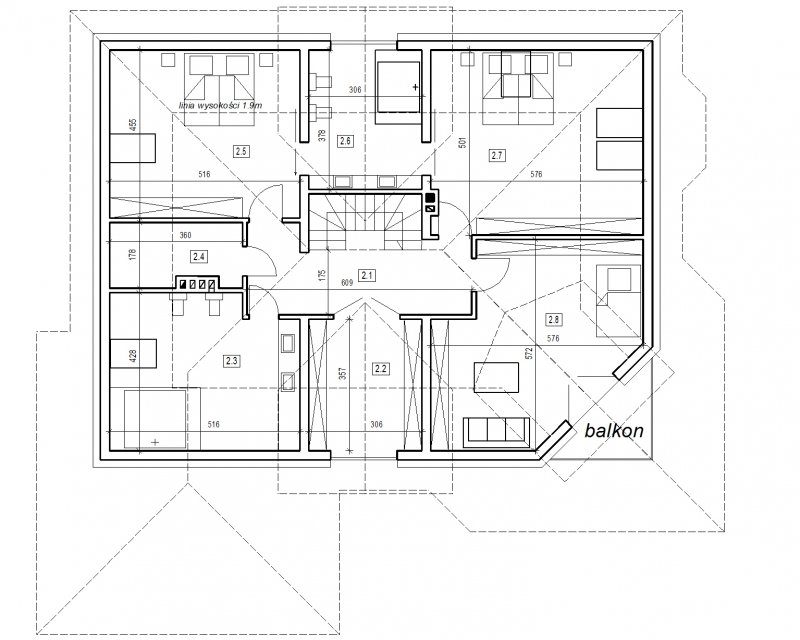
Projekt jest wersją powiększoną projektu DJ 179, który cieszy się dużą popularnością. Dodano także lukarny oraz balkon nad zadaszeniem tarasu. Pokój dzienny zaprojektowano od strony południowej.
Energooszczędność:
Wersja standardowa:
Projekt spełnia wymagania cieplne dla nowo projektowanych domów określone w WT2008 (Rozporządzenie Ministra Infrastruktury dotyczące warunków technicznych, jakim powinny odpowiadać budynki i ich usytuowanie). Charakterystyka energetyczna w granicach 120 [kWh/m2/rok].
Wersja energooszczędna:
Projekt dostępny w wersji energooszczędnej. Czas realizacji zamówienia 10dni.
Charakterystyka energetyczna w granicach 75 [kWh/m2/rok].
Projekt w tej wersji posiada instalację wentylacji z odzyskiem ciepła oraz zmodyfikowane grubości izolacji fundamentów, podłóg, ścian, stropów i dachu.
1.1 Przedsionek 6,5
1.2 Hall 14.8
1.3 Salon 38.4
1.4 Gabinet 14.3
1.5 Kuchnia 20.2
1.6 Schowek 2.2
1.7 Sypialnia 14.4
1.8 Garderoba 3.3
1.9 Łazienka 5.2
1.10 Łazienka 4.6
1.11 Pom.gospodarcze 6.2
1.12 Garaż 2st. 36.7
Razem pu. parteru bez garażu i pom gosp. 123.9
Razem z pom. gosp. i garażem 166.8