Dane techniczne
- Powierzchnia użytkowa 107.12 m²
- Powierzchnia zabudowy 119.10 m²
- Kubatura 340.55 m³
- Kąt nachylenia dachu 40.00°
- Powierzchnia dachu 146.90 m²
- Wysokość budynku 7.99 m
- Min. wymiary działki 21.90x15.80 m
- Garaż 20.30 m²
- Pracownia Domidea
Technologia budowy
Ściany zewnętrzne tradycyjne murowane dwuwarstwowe – pustak ceramiczny 25 cm i styropian.
Strop gęstożebrowy. Schody monolityczne. Dach o konstrukcji drewnianej z pokryciem z dachówki ceramicznej, cementowej lub blachodachówki.
Opis
Wygodny, 5-pokojowy dom z poddaszem użytkowym. Na parterze znajduje się przestronny salon połączony z kuchnią oraz 11-metrowy pokój. Oprócz tego zaprojektowane jest także pomieszczenie przeznaczone na kotłownię oraz pralnię i suszarnię, przez które jest przejście do jednostanowiskowego garażu.
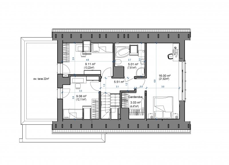
Na piętrze trzy sypialnie oraz ogólnodostępna łazienka. Największa sypialnia połączona jest z garderobą.
Rzuty
- wiatrołap 2,7 m2
- hall 5,52 m2
- pokój dzienny kuchnia 36,16 m2
- łazienka 4,01 m2
- pokój 11 m2
- kotłownia 7,32 m2
- garaż jednostanowiskowy 20,3 m2
- korytarz 5,51 m2
- pokój 9,08 m2
- pokój 9,11 m2
- łazienka 5,01 m2
- pokój 16 m2
- garderoba 3,03 m2
Rzuty
- wiatrołap 2,7 m2
- hall 5,52 m2
- pokój dzienny kuchnia 36,16 m2
- łazienka 4,01 m2
- pokój 11 m2
- kotłownia 7,32 m2
- garaż jednostanowiskowy 20,3 m2
- korytarz 5,51 m2
- pokój 9,08 m2
- pokój 9,11 m2
- łazienka 5,01 m2
- pokój 16 m2
- garderoba 3,03 m2
Dbamy o swoich Klientów, jak nikt inny!
Do każdego projektu zakupionego za pośrednictwem serwisu kreoDOM.pl otrzymasz książeczkę z rabatami na zakupy w firmach Komfort, Fachowiec, Domino Łazienki, Komandor, Witek Home i innych. Książeczka na pewno okaże się przydatna podczas urządzania Twojego wymarzonego domu!
Książeczka z rabatami do takich firm jak: Komfort, Domino Łazienki, Fachowiec, Vox, Komandor, Witek Home i innych
Gwarancja
bezpiecznych zakupów
Dodatkowe pakiety projektowe