Dane techniczne
- Powierzchnia użytkowa 97.50 m²
- Powierzchnia zabudowy 79.00 m²
- Kubatura 804.00 m³
- Kąt nachylenia dachu 45.00°
- Wysokość budynku 9.40 m
- Min. wymiary działki 20.80x15.80 m
- Garaż 17.50 m²
- Pracownia Archeton
Technologia budowy
Wersja Technologiczna: murowana – beton komórkowy;
Ściany Zewnętrzne: beton komórkowy SOLBET Optimal + 15cm ocieplenia;
Ściany Wewnętrzne: beton komórkowy SOLBET;
Strop: żelbetowy;
Konstrukcja Dachu: drewniana, jętkowa;
Rodzaj Schodow: żelbetowe;
Pokrycie Dachu: dachówka firmy ROBEN;
Elewacje: tynk cementowo-wapienny;
Typ Ogrzewania: kocioł na gaz;
Koszty
Całkowity: 390908.00 zł
Fundamenty: 71115.00 zł
Stan Surowy: 185138.00 zł
Stolarka: 15788.00 zł
Stan Zamknięty: 200926.00 zł
Stan Wykończony: 390908.00 zł
Wycena według poziomu cen z: IV kwartał 2011 r.
Opis
Dom parterowy, z użytkowym poddaszem, calkowicie podpiwniczony, z garażem.
Rzuty
PARTER
- pokój dzienny 27.0 m2
- kuchnia 16.7 m2
- hol 5.8 m2
- wc 3.6 m2
- klatka schodowa 2.3 m2
- sień 1.2 m2
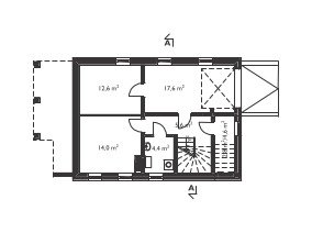
PIWNICA
- garaż 17.5 m2
- pomieszczenie gospodarcze 14.1 m2
- pomieszczenie gospodarcze 12.6 m2
- korytarz 5.4 m2
- klatka schodowa 4.7 m2
- pomieszczenie gospodarcze 4.5 m2
- kotłownia 4.3 m2
PODDASZE
- pokój 12.7 m2
- pokój 10.8 m2
- pokój 10.4 m2
- przedpokój 6.5 m2
- łazienka 2.9 m2
- klatka schodowa 2.3 m2
Rzuty
PARTER
- pokój dzienny 27.0 m2
- kuchnia 16.7 m2
- hol 5.8 m2
- wc 3.6 m2
- klatka schodowa 2.3 m2
- sień 1.2 m2
PIWNICA
- garaż 17.5 m2
- pomieszczenie gospodarcze 14.1 m2
- pomieszczenie gospodarcze 12.6 m2
- korytarz 5.4 m2
- klatka schodowa 4.7 m2
- pomieszczenie gospodarcze 4.5 m2
- kotłownia 4.3 m2
PODDASZE
- pokój 12.7 m2
- pokój 10.8 m2
- pokój 10.4 m2
- przedpokój 6.5 m2
- łazienka 2.9 m2
- klatka schodowa 2.3 m2
Dbamy o swoich Klientów, jak nikt inny!
Do każdego projektu zakupionego za pośrednictwem serwisu kreoDOM.pl otrzymasz książeczkę z rabatami na zakupy w firmach Komfort, Fachowiec, Domino Łazienki, Komandor, Witek Home i innych. Książeczka na pewno okaże się przydatna podczas urządzania Twojego wymarzonego domu!
Książeczka z rabatami do takich firm jak: Komfort, Domino Łazienki, Fachowiec, Vox, Komandor, Witek Home i innych
Gwarancja
bezpiecznych zakupów
Dodatkowe pakiety projektowe
- Kosztorys inwestorski 90,00 zł - 249,00 zł
- Dodatkowy egzemplarz projektu 123,00 zł
- Kotłownia na paliwo stałe zapytaj o dostępność