Dane techniczne
- Powierzchnia użytkowa 118.48 m²
- Powierzchnia zabudowy 87.30 m²
- Kubatura 343.34 m³
- Kąt nachylenia dachu 42.00°
- Powierzchnia dachu 136.00 m²
- Wysokość budynku 8.61 m
- Min. wymiary działki 17.00x17.70 m
- Pracownia LK & Projekt
Technologia budowy
- Konstrukcja dachu: drewniana docieplona wełną mineralną gr. 30 cm firmy Rockwool
- Pokrycie dachu: blachodachówka 'Corona' firmy Ahi Roofing
- Ściany zewnętrzne: z bloczków z betonu komórkowego Ytong Energo gr.36,5 cm firmy Xella
- Ściany wewnętrzne: z bloczków Ytong o gr.24 cm i bloczków Silka o gr.12 cm
- Strop: prefabrykowane płyty stropowe ze zbrojonego betonu komórkowego 'YTONG' firmy XELLA o gr. 24 cm
- Ściany fundamentowe: betonowe o gr.30 cm ocieplone styropianem 'Gold fundament' firmy Termo Organika gr.6 cm
- Ławy fundamentowe: żelbetowe
- Elewacje: wykończone tynkiem silikonowym, cokoły obłożone kamieniem naturalnym ciętym
- Okna i drzwi balkonowe: PVC firmy Oknoplast
- Sposób ogrzewania: kocioł na gaz, ogrzewanie kominkowe z systemem dystrybucji gorącego powietrza
- Wentylacja: grawitacyjna
- Koszt orientacyjny (bez Vat): 260 656.00 zł.
Opis
Budynek jednorodzinny, parterowy, z poddaszem mieszkalnym.
Rzuty
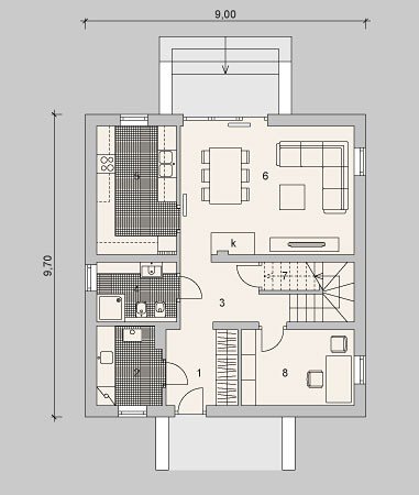
PARTER
- użytkowa 65,85 m2
- Sień 5,62 m2
- Pralnia z kotłownią 5,50 m2
- Hall 5,72 m2
- Łazienka 4,92 m2
- Kuchnia 10,59 m2
- Pokój dzienny z jadalnią 23,02 m2
- Schowek 1,65 m2
- Gabinet 8,83 m2
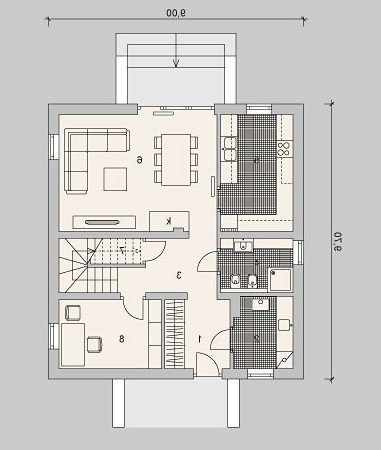
PODDASZE
- Hall(6,20) 6,20 m2
- Sypialnia(11,35) 9,16 m2
- Łazienka(9,24) 7,04 m2
- Garderoba(4,63) 2,98 m2
- Sypialnia 2(17,34) 13,75 m2
- Sypialnia 3(17,12) 13,50 m2
Rzuty
PARTER
- użytkowa 65,85 m2
- Sień 5,62 m2
- Pralnia z kotłownią 5,50 m2
- Hall 5,72 m2
- Łazienka 4,92 m2
- Kuchnia 10,59 m2
- Pokój dzienny z jadalnią 23,02 m2
- Schowek 1,65 m2
- Gabinet 8,83 m2
PODDASZE
- Hall(6,20) 6,20 m2
- Sypialnia(11,35) 9,16 m2
- Łazienka(9,24) 7,04 m2
- Garderoba(4,63) 2,98 m2
- Sypialnia 2(17,34) 13,75 m2
- Sypialnia 3(17,12) 13,50 m2
Dbamy o swoich Klientów, jak nikt inny!
Do każdego projektu zakupionego za pośrednictwem serwisu kreoDOM.pl otrzymasz książeczkę z rabatami na zakupy w firmach Komfort, Fachowiec, Domino Łazienki, Komandor, Witek Home i innych. Książeczka na pewno okaże się przydatna podczas urządzania Twojego wymarzonego domu!
Książeczka z rabatami do takich firm jak: Komfort, Domino Łazienki, Fachowiec, Vox, Komandor, Witek Home i innych
Gwarancja
bezpiecznych zakupów
Dodatkowe pakiety projektowe
- Kosztorys inwestorski cena ustalana indywidualnie
- Kolektory słoneczne cena ustalana indywidualnie
- Kominek z DGP cena ustalana indywidualnie
- Wentylacja mechaniczna z rekuperacją cena ustalana indywidualnie
- Pompa ciepła cena ustalana indywidualnie