Dane techniczne
- Powierzchnia użytkowa 168.65 m²
- Powierzchnia zabudowy 181.38 m²
- Kubatura 666.74 m³
- Kąt nachylenia dachu 45.00°
- Powierzchnia dachu 333.29 m²
- Wysokość budynku 9.00 m
- Min. wymiary działki 16.10x31.95 m
- Pracownia LK & Projekt
Technologia budowy
- Wentylacja: mechaniczna z rekuperacją
- Okna i drzwi balkonowe: aluminiowe
- Sposób ogrzewania: kocioł na gaz, ogrzewanie podłogowe
- Pokrycie dachu: dachówką ceramiczną 'Koramic' firmy Wienerberger, płaska Actua
- Elewacje: wykończone tynkiem silikonowym, panele elewacyjne HPL z okleiną drewnianą
- Ściany wewnętrzne: z pustaków ceramicznych 'Porotherm P+W' gr. 25, 11.5 cm firmy Wienerberger
- Strop: żelbetowy
- Konstrukcja dachu: drewniana, docieplona wełną mineralną o łącznej gr.30 cm firmy Rockwool
- Ściany zewnętrzne: z pustaków ceramicznych 'Porotherm P+W' o gr.25 i 30 cm firmy Wienerberger, ocieplone styropianem 'Platinum fasada' gr. 20 cm firmy Termo Organika
- Ławy fundamentowe: żelbetowe
- Ściany fundamentowe: z bloczków betonowych o gr.25,30 cm, ocieplone styropianem 'Platinum fundament' o gr. 20 cm firmy Termo Organika
- Stan na kwartał: III 2014 zł.
- Roboty budowlane stanu zerowego: 37 405.95 zł.
- Stan surowy zadaszony: 197 622.92 zł.
- Stolarka: 86 223.49 zł.
- Roboty budowlane stanu wykończeniowego: 159 634.07 zł.
- Instalacje: 99 200.00 zł.
- Koszt budowy ogółem (bez VAT): 580 086.43 zł.
Opis
Dom z poddaszem, wzbogacony o dwa stanowiska garażowe pod wiatą. Idealny projekt dla osób szukających tradycyjnych brył o nowoczesnym wykończeniu.
Rzuty
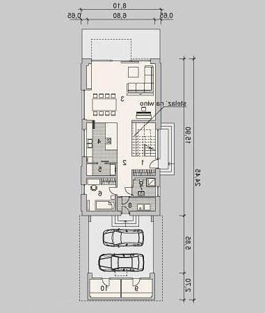
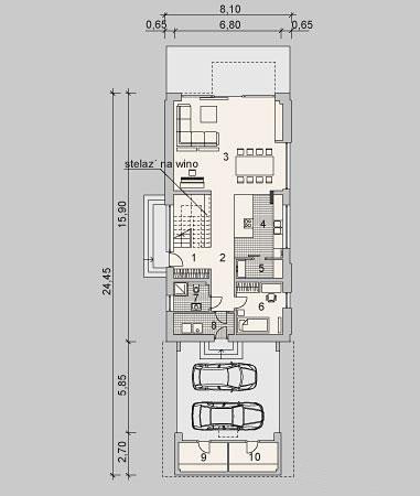
PARTER
- Powierzchnia użytkowa 88,71 m2
- Sień 6,12 m2
- Hall 11,56 m2
- Pokój dzienny z jadalnią 40,12 m2
- Kuchnia 13,16 m2
- Spiżarka 3,55 m2
- Pokój gościnny 9,95 m2
- Łazienka 4,25 m2
- Kotłownia 5,40 m2
- Schowek 5,85 m2
- Schowek 2 5,85 m2
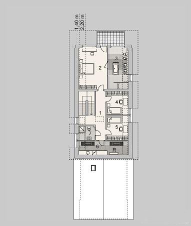
PODDASZE
- Powierzchnia podłogi 92,39 m2
- użytkowa 79,94 m2
- Hall (13,26) 12,58 m2
- Sypialnia (23,16) 20,35 m2
- Łazienka (16,70) 13,90 m2
- Sypialnia 2 (10,37) 8,75 m2
- Sypialnia 3 (10,68) 9,01 m2
- Pralnia (13,58) 11,70 m2
- Łazienka 2 (4,64) 3,65 m2
Rzuty
PARTER
- Powierzchnia użytkowa 88,71 m2
- Sień 6,12 m2
- Hall 11,56 m2
- Pokój dzienny z jadalnią 40,12 m2
- Kuchnia 13,16 m2
- Spiżarka 3,55 m2
- Pokój gościnny 9,95 m2
- Łazienka 4,25 m2
- Kotłownia 5,40 m2
- Schowek 5,85 m2
- Schowek 2 5,85 m2
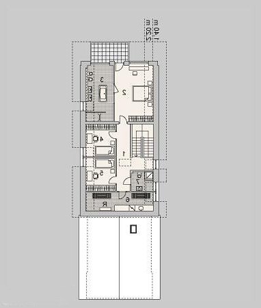
PODDASZE
- Powierzchnia podłogi 92,39 m2
- użytkowa 79,94 m2
- Hall (13,26) 12,58 m2
- Sypialnia (23,16) 20,35 m2
- Łazienka (16,70) 13,90 m2
- Sypialnia 2 (10,37) 8,75 m2
- Sypialnia 3 (10,68) 9,01 m2
- Pralnia (13,58) 11,70 m2
- Łazienka 2 (4,64) 3,65 m2
Dbamy o swoich Klientów, jak nikt inny!
Do każdego projektu zakupionego za pośrednictwem serwisu kreoDOM.pl otrzymasz książeczkę z rabatami na zakupy w firmach Komfort, Fachowiec, Domino Łazienki, Komandor, Witek Home i innych. Książeczka na pewno okaże się przydatna podczas urządzania Twojego wymarzonego domu!
Książeczka z rabatami do takich firm jak: Komfort, Domino Łazienki, Fachowiec, Vox, Komandor, Witek Home i innych
Gwarancja
bezpiecznych zakupów
Dodatkowe pakiety projektowe
- Kosztorys inwestorski cena ustalana indywidualnie
- Kolektory słoneczne cena ustalana indywidualnie
- Kominek z DGP cena ustalana indywidualnie
- Wentylacja mechaniczna z rekuperacją cena ustalana indywidualnie
- Pompa ciepła cena ustalana indywidualnie