Dane techniczne
- Powierzchnia użytkowa 129.50 m²
- Powierzchnia zabudowy 154.30 m²
- Kubatura 511.96 m³
- Kąt nachylenia dachu 35.00°
- Powierzchnia dachu 343.14 m²
- Wysokość budynku 7.44 m
- Min. wymiary działki 25.50x22.70 m
- Pracownia LK & Projekt
Technologia budowy
- Elewacje: wykończone tynkiem silikonowym, kamieniem naturalnym ciętym
- Pokrycie dachu: dachówką ceramiczną Koramic firmy Wienerberger
- Konstrukcja dachu: drewniana, krokwiowa, docieplona wełną mineralną firmy Rockwool o łącznej gr.40 cm
- Strop: żelbetowy
- Ściany wewnętrzne: z pustaków ceramicznych Heluz Family o gr.25 cm, 11,5 cm
- Ściany zewnętrzne: z pustaków ceramicznych Heluz Family o gr. 50 cm
- Ławy fundamentowe: żelbetowe
- Ściany fundamentowe: z pustaków ceramicznych Heluz Family o gr. 50 cm
- Okna i drzwi balkonowe: drewniane
- Sposób ogrzewania: kocioł na gaz
- Wentylacja: mechaniczna z rekuperacją
- Koszt orientacyjny (bez Vat): 480 000.00 zł.
Opis
Jednorodzinny budynek mieszkalny, parterowy z użytkowym poddaszem.
Rzuty
RZUT PARTERU
- Sień 5,08 m2
- Kuchnia 9,93 m2
- Pokój dzienny z jadalnią 34,82 m2
- Hall 10,73 m2
- Schowek 1,76 m2
- Sypialnia 11,85 m2
- Sypialnia 2 14,22 m2
- Pomieszczenie gospodarcze 6,8 m2
- Łazienka 6,4 m2
- Kotłownia 6,3 m2
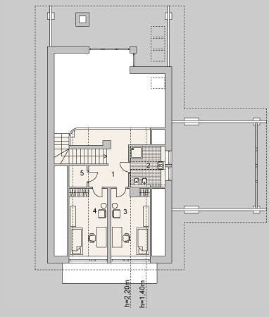
RZUT PODDASZA
- Hall 12,17 m2
- Łazienka 4,6 m2
- Sypialnia 9,97 m2
- Sypialnia 2 9,97 m2
- Pomieszczenie gospodarcze 0,83 m2
Rzuty
RZUT PARTERU
- Sień 5,08 m2
- Kuchnia 9,93 m2
- Pokój dzienny z jadalnią 34,82 m2
- Hall 10,73 m2
- Schowek 1,76 m2
- Sypialnia 11,85 m2
- Sypialnia 2 14,22 m2
- Pomieszczenie gospodarcze 6,8 m2
- Łazienka 6,4 m2
- Kotłownia 6,3 m2
RZUT PODDASZA
- Hall 12,17 m2
- Łazienka 4,6 m2
- Sypialnia 9,97 m2
- Sypialnia 2 9,97 m2
- Pomieszczenie gospodarcze 0,83 m2
Dbamy o swoich Klientów, jak nikt inny!
Do każdego projektu zakupionego za pośrednictwem serwisu kreoDOM.pl otrzymasz książeczkę z rabatami na zakupy w firmach Komfort, Fachowiec, Domino Łazienki, Komandor, Witek Home i innych. Książeczka na pewno okaże się przydatna podczas urządzania Twojego wymarzonego domu!
Książeczka z rabatami do takich firm jak: Komfort, Domino Łazienki, Fachowiec, Vox, Komandor, Witek Home i innych
Gwarancja
bezpiecznych zakupów
Dodatkowe pakiety projektowe
- Kosztorys inwestorski cena ustalana indywidualnie
- Kolektory słoneczne cena ustalana indywidualnie
- Kominek z DGP cena ustalana indywidualnie
- Wentylacja mechaniczna z rekuperacją cena ustalana indywidualnie
- Pompa ciepła cena ustalana indywidualnie