Dane techniczne
- Powierzchnia użytkowa 220.77 m²
- Powierzchnia zabudowy 231.76 m²
- Kubatura 1187.91 m³
- Kąt nachylenia dachu 40.00°
- Powierzchnia dachu 507.65 m²
- Wysokość budynku 8.70 m
- Min. wymiary działki 26.40x29.50 m
- Garaż 42.25 m²
- Pracownia LK & Projekt
Technologia budowy
- Wentylacja: mechaniczna z rekuperacją
- Ławy fundamentowe: żelbetowe
- Ściany fundamentowe: z bloczków betonowych o gr.24 i 30 cm, ocieplone styropianem 'Gold fundament' o gr.20 cm firmy Termo Organika
- Ściany zewnętrzne: z pustaków ceramicznych Heluz Family o gr. 50 cm
- Ściany wewnętrzne: z pustaków ceramicznych Heluz Family o gr.25 cm, 11,5 cm
- Strop: żelbetowy
- Konstrukcja dachu: drewniana, krokwiowa, ocieplona wełną mineralną 'Megarock' firmy Rockwool o łącznej grubości 30 cm
- Pokrycie dachu: dachówką ceramiczną 'Koramic' firmy Wienerberger
- Elewacje: wykończone tynkiem silikonowym, kamieniem naturalnym ciętym i deskami lakierowanymi
- Okna i drzwi balkonowe: drewniane
- Sposób ogrzewania: pompa ciepła, podgrzewanie CWU wspomagane kolektorami słonecznymi firmy Fakro
- Koszt orientacyjny (bez Vat): 859 896.00 zł.
Opis
Projekt domu z poddaszem.
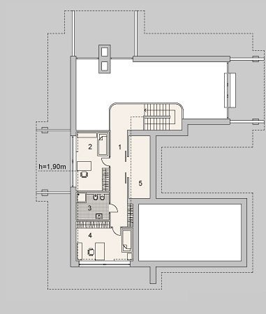
Rzuty
PIWNICA
- Korytarz 27,00 m²
PARTER
- Sypialnia 215,28 m²
PIĘTRO
- Sypialnia 215,02 m²(16,16
Rzuty
PIWNICA
- Korytarz 27,00 m²
PARTER
- Sypialnia 215,28 m²
PIĘTRO
- Sypialnia 215,02 m²(16,16
Dbamy o swoich Klientów, jak nikt inny!
Do każdego projektu zakupionego za pośrednictwem serwisu kreoDOM.pl otrzymasz książeczkę z rabatami na zakupy w firmach Komfort, Fachowiec, Domino Łazienki, Komandor, Witek Home i innych. Książeczka na pewno okaże się przydatna podczas urządzania Twojego wymarzonego domu!
Książeczka z rabatami do takich firm jak: Komfort, Domino Łazienki, Fachowiec, Vox, Komandor, Witek Home i innych
Gwarancja
bezpiecznych zakupów
Dodatkowe pakiety projektowe
- Kosztorys inwestorski cena ustalana indywidualnie
- Kolektory słoneczne cena ustalana indywidualnie
- Kominek z DGP cena ustalana indywidualnie
- Wentylacja mechaniczna z rekuperacją cena ustalana indywidualnie
- Pompa ciepła cena ustalana indywidualnie