Dane techniczne
- Powierzchnia użytkowa 123.88 m²
- Powierzchnia zabudowy 99.20 m²
- Kubatura 527.76 m³
- Kąt nachylenia dachu 43.00°
- Powierzchnia dachu 184.08 m²
- Wysokość budynku 8.70 m
- Min. wymiary działki 16.00x28.38 m
- Garaż 33.35 m²
- Pracownia LK & Projekt
Technologia budowy
- Ściany wewnętrzne: z bloczków z betonu komórkowego o gr. 24cm, z bloczków gipsowych Rigiroc firmy Rigips o gr. 10 cm, system suchej zabudowy Rigips
- Sposób ogrzewania: kocioł na gaz, podgrzewanie cwu wspomagane kolektorami słonecznymi, ogrzewanie podłogowe oraz grzejnikowe
- Wentylacja: mechaniczna z rekuperacją
- Okna i drzwi balkonowe: PVC z szybami Glassolutions
- Strop: żelbetowy
- Konstrukcja dachu: drewniana, krokwiowa, ocieplona wełną mineralną firmy Isover o łącznej grubości 36 cm
- Ściany zewnętrzne: z bloczków z betonu komórkowego o gr. 24 cm, ocieplone wełną mineralną TF-Profi firmy Isover o gr. 24 cm
- Pokrycie dachu: dachówką eramiczną
- Elewacje: wykończone tynkiem silikonowym firmy WEBER, kamieniem naturalnym ciętym
- Ławy fundamentowe: żelbetowe
- Ściany fundamentowe: z bloczków betonowych, ocieplone styropianem ekstrudowanym o gr. 20 cm
- Koszt orientacyjny (bez Vat): 432 422.00 zł.
Opis
Projekt tradycyjnego domu z poddaszem, przeznaczonego dla rodziny 3-5 osobowej. Posiada piwnice, a w niej miejsce garażowe.
Rzuty
PIWNICA
- Korytarz 2,38 m²
- Pralnia z kotłownią 15,13 m²
- Garaż 35,80 m²
- Pomieszczenie gospodarcze 11,02 m
PARTER
- Sień 7,66 m²
- WC 2,86 m²
- Hall 5,84 m²
- Kuchnia 8,84 m²
- Jadalnia 7,10 m²
- Pokój dzienny 32,09 m²
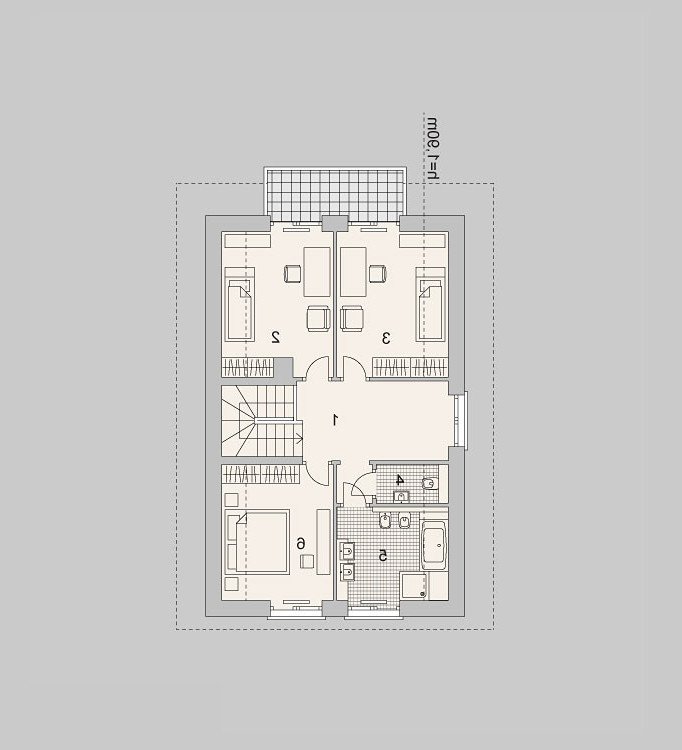
PODDASZE
- Hall 12,66 m²
- Sypialnia 11,76 m²
- Sypialnia 2 12,12 m²
- WC 1,77 m²
- Łazienka 7,77 m²
- Sypialnia 3 11,31 m
Rzuty
PIWNICA
- Korytarz 2,38 m²
- Pralnia z kotłownią 15,13 m²
- Garaż 35,80 m²
- Pomieszczenie gospodarcze 11,02 m
PARTER
- Sień 7,66 m²
- WC 2,86 m²
- Hall 5,84 m²
- Kuchnia 8,84 m²
- Jadalnia 7,10 m²
- Pokój dzienny 32,09 m²
PODDASZE
- Hall 12,66 m²
- Sypialnia 11,76 m²
- Sypialnia 2 12,12 m²
- WC 1,77 m²
- Łazienka 7,77 m²
- Sypialnia 3 11,31 m
Dbamy o swoich Klientów, jak nikt inny!
Do każdego projektu zakupionego za pośrednictwem serwisu kreoDOM.pl otrzymasz książeczkę z rabatami na zakupy w firmach Komfort, Fachowiec, Domino Łazienki, Komandor, Witek Home i innych. Książeczka na pewno okaże się przydatna podczas urządzania Twojego wymarzonego domu!
Książeczka z rabatami do takich firm jak: Komfort, Domino Łazienki, Fachowiec, Vox, Komandor, Witek Home i innych
Gwarancja
bezpiecznych zakupów
Dodatkowe pakiety projektowe
- Kosztorys inwestorski cena ustalana indywidualnie
- Kolektory słoneczne cena ustalana indywidualnie
- Kominek z DGP cena ustalana indywidualnie
- Wentylacja mechaniczna z rekuperacją cena ustalana indywidualnie
- Pompa ciepła cena ustalana indywidualnie