Dane techniczne
- Powierzchnia użytkowa 160.71 m²
- Powierzchnia zabudowy 219.62 m²
- Kubatura 572.55 m³
- Kąt nachylenia dachu 35.00°
- Powierzchnia dachu 325.85 m²
- Wysokość budynku 7.48 m
- Min. wymiary działki 28.00x19.30 m
- Pracownia LK & Projekt
Technologia budowy
- Okna i drzwi balkonowe: drewniane
- Sposób ogrzewania: kocioł na gaz, podgrzewanie cwu wspomagane kolektorami słonecznymi, ogrzewanie podłogowe
- Pokrycie dachu: dachówką ceramiczną
- Elewacje: wykończone tynkiem silikonowym, kamieniem naturalnym łupanym
- Ściany wewnętrzne: z pustaków ceramicznych Porotherm gr. 25, 11.5 firmy Wienerberger
- Strop: żelbetowy
- Konstrukcja dachu: drewniana, ocieplona wełną mineralną gr. 40 cm
- Ściany zewnętrzne: z pustaków ceramicznych Porother 44 T o gr.44 cm firmy Wienerberger
- Ściany fundamentowe: płyta żelbetowa, ocieplona styropianem ekstrudowanym o gr.20 cm
- Wentylacja: mechaniczna z rekuperacją
- Koszt orientacyjny (bez Vat): 449 988.00 zł.
Opis
Dom jednorodzinny z poddaszem użytkowym
Rzuty
Parter
1. Sień 4.90m
2. Spiżarka 2.47m
3. Kuchnia 8.74m
4. Pokój dzienny z jadalnią 37.37m
5. Hall 10.74m
6. WC 2.40m
7. Sypialnia 11.85m
8. Sypialnia 2 17.38m
9. Garderoba 8.04m
10. Łazienka 8.63m
11. Kotłownia z pralnią 6.32m
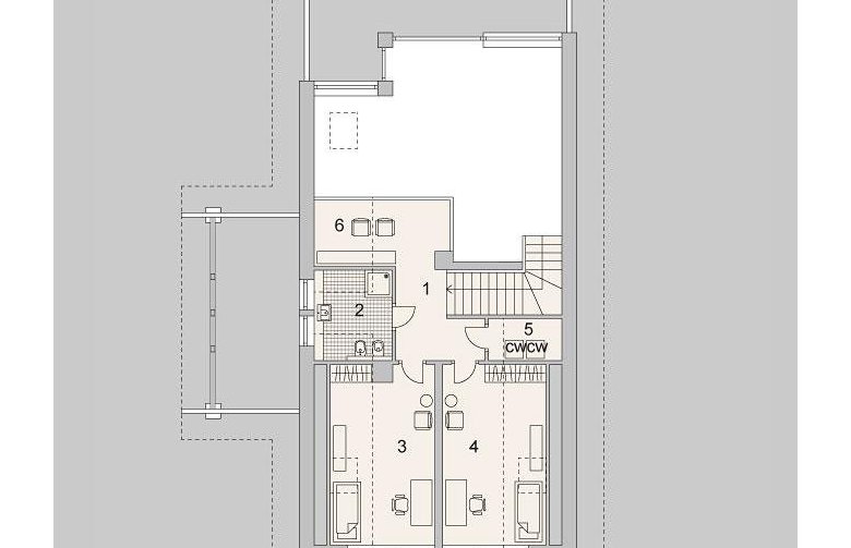
Poddasze
1. Hall (6.98) 6.98m
2. Łazienka (7.74) 4.65m
3. Sypialnia (20.42) 12.02m
4. Sypialnia 2 (20.45) 12.12m
5. Pomieszczenie gospodarcze (3.40) 0.70m
6. Biblioteka (9.65) 5.40m
Rzuty
Parter
1. Sień 4.90m
2. Spiżarka 2.47m
3. Kuchnia 8.74m
4. Pokój dzienny z jadalnią 37.37m
5. Hall 10.74m
6. WC 2.40m
7. Sypialnia 11.85m
8. Sypialnia 2 17.38m
9. Garderoba 8.04m
10. Łazienka 8.63m
11. Kotłownia z pralnią 6.32m
Poddasze
1. Hall (6.98) 6.98m
2. Łazienka (7.74) 4.65m
3. Sypialnia (20.42) 12.02m
4. Sypialnia 2 (20.45) 12.12m
5. Pomieszczenie gospodarcze (3.40) 0.70m
6. Biblioteka (9.65) 5.40m
Dbamy o swoich Klientów, jak nikt inny!
Do każdego projektu zakupionego za pośrednictwem serwisu kreoDOM.pl otrzymasz książeczkę z rabatami na zakupy w firmach Komfort, Fachowiec, Domino Łazienki, Komandor, Witek Home i innych. Książeczka na pewno okaże się przydatna podczas urządzania Twojego wymarzonego domu!
Książeczka z rabatami do takich firm jak: Komfort, Domino Łazienki, Fachowiec, Vox, Komandor, Witek Home i innych
Gwarancja
bezpiecznych zakupów
Dodatkowe pakiety projektowe
- Kosztorys inwestorski cena ustalana indywidualnie
- Kolektory słoneczne cena ustalana indywidualnie
- Kominek z DGP cena ustalana indywidualnie
- Wentylacja mechaniczna z rekuperacją cena ustalana indywidualnie
- Pompa ciepła cena ustalana indywidualnie