Dane techniczne
- Powierzchnia użytkowa 218.74 m²
- Powierzchnia zabudowy 392.00 m²
- Kubatura 559.00 m³
- Kąt nachylenia dachu 45.00°
- Powierzchnia dachu 299.00 m²
- Wysokość budynku 8.85 m
- Min. wymiary działki 18.00x28.00 m
- Pracownia LK & Projekt
Technologia budowy
- Sposób ogrzewania: kocioł na gaz, ogrzewanie podłogowe
- Strop: żelbetowy, monolityczny
- Konstrukcja dachu: drewniana, ocieplona wełną mineralną firmy Rockwool gr. 30cm
- Pokrycie dachu: blacha tytan.-cynk.
- Elewacje: tynk silikonowy, płyty HPL, cokół obłożony płytkami granitowymi
- Ściany wewnętrzne: bloczków Silka gr.24 cm, 18 cm i 12 cm firmy Xella
- Okna i drzwi balkonowe: aluminiowe, okna połaciowe firmy Fakro
- Ściany zewnętrzne: z bloczków z betonu komórkowego Ytong Energo gr.48cm; częściowo z bloczków z betonu komórkowego Ytong Energo o gr. 30 cm ocieplone styropianem 'Platinum Fasada' gr. 18 cm firmy Termo Organika
- Ławy fundamentowe: żelbetowe
- Ściany fundamentowe: z pustaków szalunkowych o gr.30 i 24 cm, ocieplone styropianem 'Gold fundament' o gr.18 cm firmy Termo Organika
- Wentylacja: mechaniczna z rekuperacją
- Koszt orientacyjny (bez Vat): 546 850.00 zł.
Opis
Dom jednorodzinny, parterowy z poddaszem użytkowym.
Rzuty
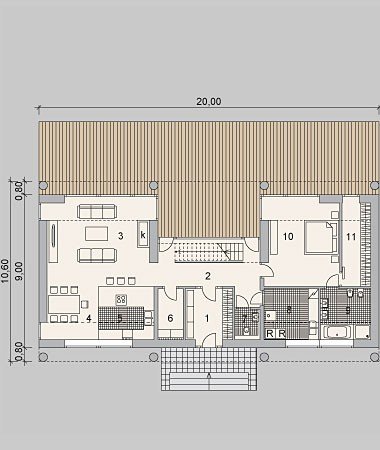
PARTER
Parter
1. Sień 8.40m
2. Korytarz
18.94m
3. Salon 29.68m
4. Jadalnia 9.42m
5. Kuchnia 10.17m
6. Spiżarka 4.44m
7. WC 2.63m
8. Pralnia z kotłownią 9.60m
9. Łazienka 8.88m
10. Sypialnia 21.10m
11. Garderoba 8.36m
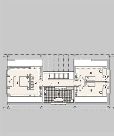
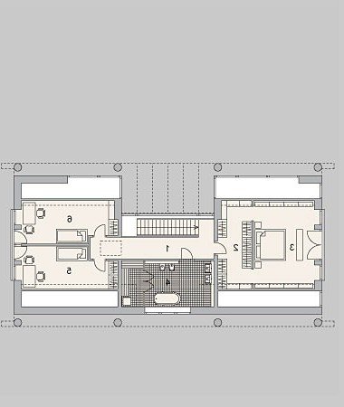
PODDASZE
Poddasze
1. Korytarz
(12.47) 12.47m
2. Garderoba (11.71) 10.85m
3. Sypialnia (22.33) 20.48m
4. Łazienka z sauną (17.64) 15.04m
5. Sypialnia 2 (15.07) 13.72m
6. Sypialnia 3 (15.97) 14.56m
Rzuty
PARTER
Parter
1. Sień 8.40m
2. Korytarz
18.94m
3. Salon 29.68m
4. Jadalnia 9.42m
5. Kuchnia 10.17m
6. Spiżarka 4.44m
7. WC 2.63m
8. Pralnia z kotłownią 9.60m
9. Łazienka 8.88m
10. Sypialnia 21.10m
11. Garderoba 8.36m
PODDASZE
Poddasze
1. Korytarz
(12.47) 12.47m
2. Garderoba (11.71) 10.85m
3. Sypialnia (22.33) 20.48m
4. Łazienka z sauną (17.64) 15.04m
5. Sypialnia 2 (15.07) 13.72m
6. Sypialnia 3 (15.97) 14.56m
Dbamy o swoich Klientów, jak nikt inny!
Do każdego projektu zakupionego za pośrednictwem serwisu kreoDOM.pl otrzymasz książeczkę z rabatami na zakupy w firmach Komfort, Fachowiec, Domino Łazienki, Komandor, Witek Home i innych. Książeczka na pewno okaże się przydatna podczas urządzania Twojego wymarzonego domu!
Książeczka z rabatami do takich firm jak: Komfort, Domino Łazienki, Fachowiec, Vox, Komandor, Witek Home i innych
Gwarancja
bezpiecznych zakupów
Dodatkowe pakiety projektowe
- Kosztorys inwestorski cena ustalana indywidualnie
- Kolektory słoneczne cena ustalana indywidualnie
- Kominek z DGP cena ustalana indywidualnie
- Wentylacja mechaniczna z rekuperacją cena ustalana indywidualnie
- Pompa ciepła cena ustalana indywidualnie