Dane techniczne
- Powierzchnia użytkowa 388.58 m²
- Powierzchnia zabudowy 491.97 m²
- Kubatura 1719.80 m³
- Kąt nachylenia dachu 37.00°
- Powierzchnia dachu 770.94 m²
- Wysokość budynku 8.44 m
- Min. wymiary działki 53.15x32.10 m
- Garaż 69.94 m²
- Pracownia LK & Projekt
Technologia budowy
- Sposób ogrzewania: kocioł na gaz, wspomaganie cwu kolektorami słonecznymi
- Elewacje: wykończone tynkiem silikonowym, okładzina kamienna
- Okna i drzwi balkonowe: drewniane
- Pokrycie dachu: dachówką ceramiczną 'Koramic' firmy 'Wienerberger', Karpiówka
- Ściany zewnętrzne: z pustaków ceramicznych 'Porotherm P+W' o gr.30 cm firmy Wienerberger,ocieplone styropianem 'Platinum fasada' o gr.20 cm firmy Termo Organika
- Strop: żelbetowy
- Konstrukcja dachu: drewniana, ocieplona wełną mineralną o gr.40 cm firmy Rockwool
- Ściany wewnętrzne: z pustaków ceramicznych 'Porotherm P+W' o gr.25 i 11,5 cm, firmy Wienerberger
- Wentylacja: mechaniczna z rekuperacją
- Koszt orientacyjny (bez Vat): 1 700 000.00 zł.
Opis
Dom z poddaszem o powierzchni użytkowej 388.58 m². Projekt posiada garaż na trzy miejsca parkingowe oraz altanę.
Rzuty
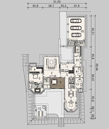
PARTER
- Powierzchnia użytkowa 275,98 m2
- Sień 18,41 m2
- Hall 20,77 m2
- Pokój dzienny 59,85 m2
- Garderoba 15,00 m2
- Sypialnia 24,60 m2
- Łazienka 19,94 m2
- Pomieszczenie techniczne 3,46 m2
- Pokój rekreacyjny 27,56 m2
- Kuchnia 22,29 m2
- Jadalnia 23,75 m2
- Spiżarka 3,90 m2
- Łazienka 2 5,35 m2
- Gabinet 15,58 m2
- Sypialnia 2 15,52 m2
- Pralnia 12,75 m2
- Garderoba 2 12,75 m2
- Pom.dla ogrodnika 4,64 m2
- Łazienka 3 2,20 m2
- Kotłownia 6,70 m2
- Garaż 69,94 m2
- Altana 21,09 m2
PODDASZE
- Powierzchnia użytkowa 92,43 m2
- Hall 5,75 m2
- Sypialnia 22,08 m2
- Pokój 32,19 m2
- Korytarz 5,51 m2
- Łazienka 7,39 m2
- Sypialnia 2 19,52 m2
- Pomieszczenie techniczne 0,95 m2
- Strych 19,22 m2
Rzuty
PARTER
- Powierzchnia użytkowa 275,98 m2
- Sień 18,41 m2
- Hall 20,77 m2
- Pokój dzienny 59,85 m2
- Garderoba 15,00 m2
- Sypialnia 24,60 m2
- Łazienka 19,94 m2
- Pomieszczenie techniczne 3,46 m2
- Pokój rekreacyjny 27,56 m2
- Kuchnia 22,29 m2
- Jadalnia 23,75 m2
- Spiżarka 3,90 m2
- Łazienka 2 5,35 m2
- Gabinet 15,58 m2
- Sypialnia 2 15,52 m2
- Pralnia 12,75 m2
- Garderoba 2 12,75 m2
- Pom.dla ogrodnika 4,64 m2
- Łazienka 3 2,20 m2
- Kotłownia 6,70 m2
- Garaż 69,94 m2
- Altana 21,09 m2
PODDASZE
- Powierzchnia użytkowa 92,43 m2
- Hall 5,75 m2
- Sypialnia 22,08 m2
- Pokój 32,19 m2
- Korytarz 5,51 m2
- Łazienka 7,39 m2
- Sypialnia 2 19,52 m2
- Pomieszczenie techniczne 0,95 m2
- Strych 19,22 m2
Dbamy o swoich Klientów, jak nikt inny!
Do każdego projektu zakupionego za pośrednictwem serwisu kreoDOM.pl otrzymasz książeczkę z rabatami na zakupy w firmach Komfort, Fachowiec, Domino Łazienki, Komandor, Witek Home i innych. Książeczka na pewno okaże się przydatna podczas urządzania Twojego wymarzonego domu!
Książeczka z rabatami do takich firm jak: Komfort, Domino Łazienki, Fachowiec, Vox, Komandor, Witek Home i innych
Gwarancja
bezpiecznych zakupów
Dodatkowe pakiety projektowe
- Kosztorys inwestorski cena ustalana indywidualnie
- Kolektory słoneczne cena ustalana indywidualnie
- Kominek z DGP cena ustalana indywidualnie
- Wentylacja mechaniczna z rekuperacją cena ustalana indywidualnie
- Pompa ciepła cena ustalana indywidualnie