Ściany zewnętrzne tradycyjne dwuwarstwowe (pustak ceramiczny + styropian), na fragmentach szalówka drewniana. Strop żelbetowy monolityczny. Dach dwuspadowy o konstrukcji drewnianej, pokryty dachówką ceramiczną, cementową lub blachodachówką.
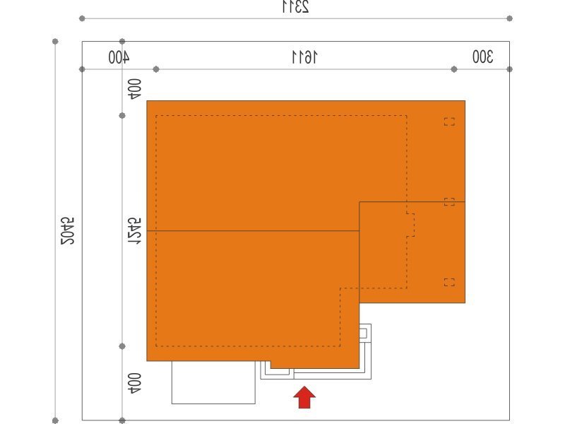
Projekt maja II 2G - to bez wątpienia dom dla osób ceniących klasyczny wygląd budynku i nowoczesne, przestronne wnętrza. Cechą charakterystyczną projektu Maja jest rozłożysty, dwu-spadowy dach, który nadaje budynkowi monumentalny wygląd. Strefa dzienna dostępna z holu głównego obejmuje duży salon (otwarty po II kondygnację) z wyjściem na taras oraz kuchnię i ogólnodostępne wc oraz łazienkę. Na parterze znajduje się także sypialnia i pokój, który można przeznaczyć na gabinet lub sypialnię dla gości. Strefę nocną domu Maja stanowią pomieszczenia znajdujące się na poddaszu - sypialnia dla rodziców, sypialnia dla pozostałych domowników z osobną garderobą, łazienka oraz ogólnodostępna garderoba.
 
					
		 
					
		 
					
		 
					
		 
					
		