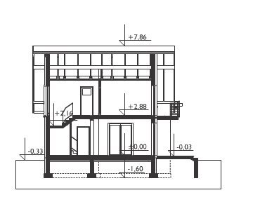
Wersja Technologiczna: murowana – beton komórkowy;
Ściany Zewnętrzne: bloczki SOLBET Optimal klasa 400, gr. 24cm + docieplenie płyty FASROCK MAX gr.15cm;
Ściany Wewnętrzne: bloczki SOLBET Optimal klasa 400 gr.24cm i ściany działowe gr.12cm;
Strop: żelbetowy, alternatywnie prefabrykowany RECTOR;
Konstrukcja Dachu: drewniana krokwiowo-płatwiowa;
Rodzaj Schodow: żelbetowe;
Pokrycie Dachu: dachówka cementowa BRAAS;
Elewacje: silikonowe, silikatowe oraz tynki mineralne BOLIX;
Typ Ogrzewania: kocioł na gaz;
Koszty
Całkowity: 316036.00 zł
Fundamenty: 31258.00 zł
Stan Surowy: 150846.00 zł
Stolarka: 14254.00 zł
Stan Zamknięty: 165100.00 zł
Stan Wykończony: 316036.00 zł
Wycena według poziomu cen z: II kwartał 2012 r.
Projekt domu Majka Solo jest jednym z mniejszych w liczącej kilkanaście wariantów rodzinie. Wyróżnia je, wśród małych i średnich domów parterowych z użytkowym poddaszem, fantazyjna sylwetka z narożnym ryzalitem zbudowanym na planie ośmioboku oraz trójkątna lukarna nad podcieniem. Przełamanie geometrii kąta prostego kształtuje także inne detale bryły: zadaszoną wnękę wejścia, taras dostępny z salonu przy ścianie bocznej i ocieniający go balkon. Rozkład wnętrza odznacza się kilkoma oryginalnymi rozwiązaniami: otwarty pokój dzienny urozmaica ośmiokątna jadalnia przy kuchni i widok na wachlarzowe schody w holu. Strefa nocna na poddaszu pozwala na indywidualną aranżację prywatnej przestrzeni w każdej z trzech sypialni o innym kształcie i sposobie doświetlenia. Projekt domu Majka Solo należy do wersji z kalenicą dwuspadowego dachu równoległą do drogi dojazdowej oraz z kotłownią dostępną z mieszkania. Jako jedyny w rodzinie nie proponuje garażu (stąd mniejsza ilość pokoi na poddaszu), a wielkością i układem funkcjonalnym najbardziej jest zbliżona do wariantu podstawowego - Majka.