Dane techniczne
- Powierzchnia użytkowa 160.60 m²
- Powierzchnia zabudowy 146.90 m²
- Kubatura 1008.50 m³
- Kąt nachylenia dachu 42.00°
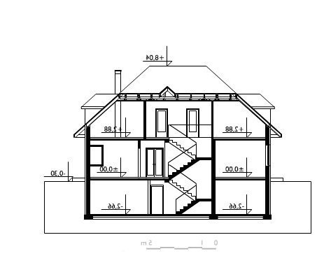
- Wysokość budynku 8.30 m
- Min. wymiary działki 23.20x23.40 m
- Garaż 19.40 m²
- Pracownia Archeton
Technologia budowy
Wersja Technologiczna: murowana – ceramika;
Ściany Zewnętrzne: cegła kratówka + styropian;
Ściany Wewnętrzne: cegła kratówka;
Strop: żelbetowy;
Konstrukcja Dachu: drewniana, jętkowa;
Rodzaj Schodow: żelbetowe;
Pokrycie Dachu: dachówka ceramiczna;
Elewacje: tynk cienkowarstwowy;
Typ Ogrzewania: kocioł na gaz;
Koszty
Całkowity: 504731.00 zł
Fundamenty: 64040.00 zł
Stan Surowy: 263970.00 zł
Stolarka: 29509.00 zł
Stan Zamknięty: 293479.00 zł
Stan Wykończony: 504731.00 zł
Wycena według poziomu cen z: II kwartał 2010 r.
Opis
Budynek przeznaczony jest dla 6-7 osobowej rodziny. Na parterze znajduje się pokój dzienny z jadalnią, pokój, kuchnia, hol, łazienka, sień wejściowa oraz garaż dostępny z sieni. Na poddaszu są 4 sypialnie, łazienka, przedpokój i strych. W piwnicy znajdują się 2 pomieszczenia gospodarcze, kotłownia, korytarz i schowek. Bryła budynku na rozczłonkowanym rzucie przykryta wielospadowym dachem o kącie nachylenia 42°. Bryłę urozmaicają liczne podcienia i lukarny.
Dbamy o swoich Klientów, jak nikt inny!
Do każdego projektu zakupionego za pośrednictwem serwisu kreoDOM.pl otrzymasz książeczkę z rabatami na zakupy w firmach Komfort, Fachowiec, Domino Łazienki, Komandor, Witek Home i innych. Książeczka na pewno okaże się przydatna podczas urządzania Twojego wymarzonego domu!
Książeczka z rabatami do takich firm jak: Komfort, Domino Łazienki, Fachowiec, Vox, Komandor, Witek Home i innych
Gwarancja
bezpiecznych zakupów
Dodatkowe pakiety projektowe
- Kosztorys inwestorski 90,00 zł - 249,00 zł
- Dodatkowy egzemplarz projektu 123,00 zł
- Kotłownia na paliwo stałe zapytaj o dostępność