Dane techniczne
- Powierzchnia użytkowa 188.18 m²
- Powierzchnia zabudowy 143.65 m²
- Kubatura 1189.00 m³
- Kąt nachylenia dachu 45.00°
- Powierzchnia dachu 265.00 m²
- Wysokość budynku 8.50 m
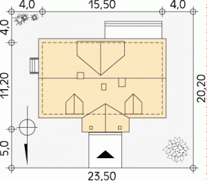
- Min. wymiary działki 23.50x21.30 m
- Pracownia MTM Styl
Technologia budowy
Ściany: 3-warstwowe - pustak ceramiczny + styropian, Stropy: nad piwnicą żelbetowe, wylewane, nad parterem na belkach drewnianych, Dach: dachówka ceramiczna, kąt nachylenia 45°
Koszty budowy (cena netto bez instalacji):
- fundamenty: 84035.00 zł
- stan-surowy: 233839.00 zł
- stolarka: 29365.00 zł
- koszt całkowity: 378001.00 zł
Opis
Budynek nadający się idealnie na cele agroturystyczne. Prosta bryła, z malowniczym detalem dobrze komponująca się w środowisko wiejskie. Pełne podpiwniczenie umożliwia schowanie przed gośćmi pomieszczeń technicznych i składowych.
Dbamy o swoich Klientów, jak nikt inny!
Do każdego projektu zakupionego za pośrednictwem serwisu kreoDOM.pl otrzymasz książeczkę z rabatami na zakupy w firmach Komfort, Fachowiec, Domino Łazienki, Komandor, Witek Home i innych. Książeczka na pewno okaże się przydatna podczas urządzania Twojego wymarzonego domu!
Książeczka z rabatami do takich firm jak: Komfort, Domino Łazienki, Fachowiec, Vox, Komandor, Witek Home i innych
Gwarancja
bezpiecznych zakupów
Dodatkowe pakiety projektowe
- Kosztorys inwestorski 90.00
- Wentylacja mechaniczna z rekuperacją Bezpłatnie