Dane techniczne
- Powierzchnia użytkowa 131.72 m²
- Powierzchnia zabudowy 111.95 m²
- Kubatura 413.19 m³
- Kąt nachylenia dachu 45.00°
- Powierzchnia dachu 149.00 m²
- Wysokość budynku 8.15 m
- Min. wymiary działki 19.40x21.80 m
- Pracownia Archipelag
Technologia budowy
Dom zaprojektowany w technologii murowej ze stropem gęstożebrowym. Schody wewnętrzne drewniane. Dach o konstrukcji drewnianej kryty dachówką cementową lub ceramiczną. Elewację wykonano z tynku mineralnego. Stolarka okienna drewniana. Rolety zewnętrzne naokienne w systemie CleverBox firmy BeClever.
Opis
Dom parterowy z poddaszem użytkowym, niepodpiwniczony, bez garażu, przeznaczony dla 4-5-osobowej rodziny. Projekt o prostej konstrukcji, niedrogi w realizacji, przeznaczony jest na wąską działkę, z frontem od strony południowej. Na parterze mieści się pokój dzienny z otwartą kuchnią, gabinet, sypialnia z garderobą oraz mała łazienka. Na poddaszu znajdują się trzy sypialnie (jedna z garderobą) i łazienka. Istnieje wersja domu z wiatą garażową.
Rzuty
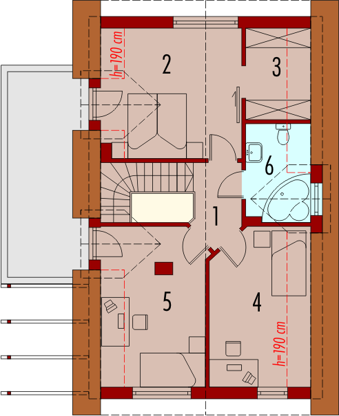
PARTER
- Wiatrołap 4.58 m2
- Garderoba 3.41 m2
- Hol 11.72 m2
- Kuchnia 5.71 m2
- Pokój dzienny jadalnia 21.75 m2
- Gabinet 12.48 m2
- Sypialnia 12.41 m2
- Łazienka 3.83 m2
- Pom. gospodarcze 6.08 m2
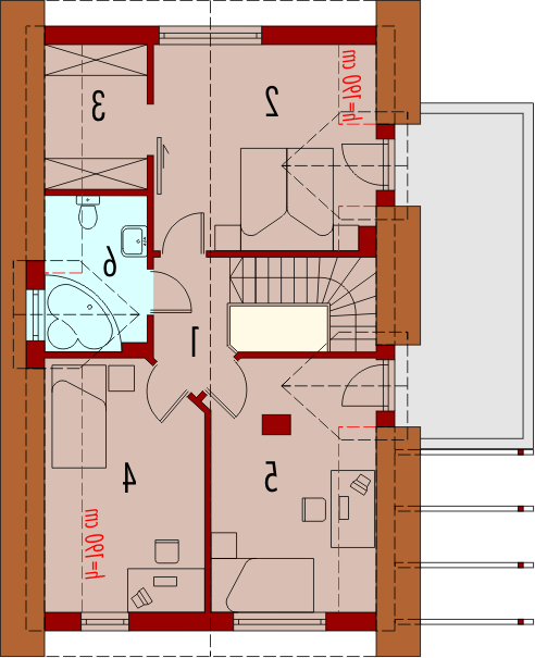
PODDASZE
- Korytarz 3.40 m2
- Sypialnia 15.02 m2
- Garderoba 3.47 m2
- Pokój 11.01 m2
- Pokój 12.47 m2
- Łazienka 4.38 m2
Rzuty
PARTER
- Wiatrołap 4.58 m2
- Garderoba 3.41 m2
- Hol 11.72 m2
- Kuchnia 5.71 m2
- Pokój dzienny jadalnia 21.75 m2
- Gabinet 12.48 m2
- Sypialnia 12.41 m2
- Łazienka 3.83 m2
- Pom. gospodarcze 6.08 m2
PODDASZE
- Korytarz 3.40 m2
- Sypialnia 15.02 m2
- Garderoba 3.47 m2
- Pokój 11.01 m2
- Pokój 12.47 m2
- Łazienka 4.38 m2
Dbamy o swoich Klientów, jak nikt inny!
Do każdego projektu zakupionego za pośrednictwem serwisu kreoDOM.pl otrzymasz książeczkę z rabatami na zakupy w firmach Komfort, Fachowiec, Domino Łazienki, Komandor, Witek Home i innych. Książeczka na pewno okaże się przydatna podczas urządzania Twojego wymarzonego domu!
Książeczka z rabatami do takich firm jak: Komfort, Domino Łazienki, Fachowiec, Vox, Komandor, Witek Home i innych
Gwarancja
bezpiecznych zakupów
Dodatkowe pakiety projektowe
- Kosztorys inwestorski cena ustalana indywidualnie
- Wentylacja mechaniczna z rekuperacją 700,00 zł
- Wentylacja mechaniczna + GPWC 700,00 zł
- Kolektory Słoneczne 400,00 zł
- Panele Fotowoltaiczne 400,00 zł
- Pompa Ciepła 500,00 zł
- Kominek z DGP 400,00 zł
- Biologiczna oczyszczalnia ścieków 150,00 zł
- Centralny Odkurzacz 300,00 zł
- Szambo przydomowe 200,00 zł
- Dodatkowy egzemplarz projektu 150,00 zł