Dane techniczne
- Powierzchnia użytkowa 111.65 m²
- Powierzchnia zabudowy 89.83 m²
- Kubatura 359.40 m³
- Kąt nachylenia dachu 45.00°
- Powierzchnia dachu 143.55 m²
- Wysokość budynku 8.72 m
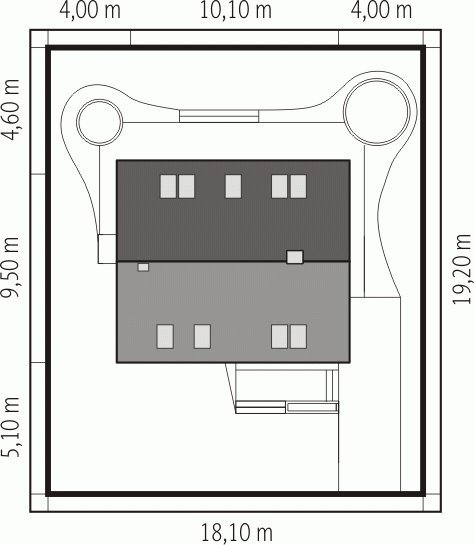
- Min. wymiary działki 18.10x20.10 m
- Pracownia Archipelag
Technologia budowy
Dom zaprojektowany w technologii murowej ze stropem gęstożebrowym. Schody wewnętrzne drewniane. Dach o konstrukcji drewnianej pokryty blachą na rąbek stojący Classic firmy Ruukki. Elewacje wykończono tynkiem mineralnym i blachą, oraz okładziną kamienną, którą można zastąpić okładziną drewnianą, klinkierową lub z elewacyjnych płyt cementowych. Cokół kamienny. Stolarka okienna drewniana lub PCV.
Opis
Dom parterowy, z poddaszem użytkowym, niepodpiwniczony.Przeznaczony dla 3-4-osobowej rodziny. Dom charakteryzuje czytelny układ pomieszczeń. Na parterze znajduje się strefa dzienna z przestronnym dobrze doświetlonym salonem, z miejscem na część jadalną oraz kuchnią ze spiżarnią. Dodatkowo w strefie wejściowej znalazły się łazienka oraz pomieszczenie gospodarcze, z którego można dostać się na ogród. Strefę nocną na poddaszu tworzą trzy duże sypialnie, łazienka i garderoba. Nowoczesny „Tim” łączy styl współczesny z klasyką. Gustowny kamień doskonale komponuje się z szykowną elewacją, nadając bryle niepowtarzalnego uroku. Funkcjonalne wnętrza cieszą domowników atmosferą swobody i słonecznego ciepła. Istnieje możliwość podpiwniczenia domu.
Rzuty
PARTER
- Wiatrołap 2.75 m2
- Hol 11.50 m2
- Kuchnia 7.60 m2
- Spiżarnia 0.87 m2
- Salon z jadalnią 31.07 m2
- Łazienka 2.52 m2
- Pom. gospodarcze 9.55 m2
PODDASZE
- Korytarz 7.51 m2
- Sypialnia 9.99 m2
- Sypialnia 9.20 m2
- Sypialnia 10.26 m2
- Garderoba 3.75 m2
- Łazienka 5.08 m2
Rzuty
PARTER
- Wiatrołap 2.75 m2
- Hol 11.50 m2
- Kuchnia 7.60 m2
- Spiżarnia 0.87 m2
- Salon z jadalnią 31.07 m2
- Łazienka 2.52 m2
- Pom. gospodarcze 9.55 m2
PODDASZE
- Korytarz 7.51 m2
- Sypialnia 9.99 m2
- Sypialnia 9.20 m2
- Sypialnia 10.26 m2
- Garderoba 3.75 m2
- Łazienka 5.08 m2
Dbamy o swoich Klientów, jak nikt inny!
Do każdego projektu zakupionego za pośrednictwem serwisu kreoDOM.pl otrzymasz książeczkę z rabatami na zakupy w firmach Komfort, Fachowiec, Domino Łazienki, Komandor, Witek Home i innych. Książeczka na pewno okaże się przydatna podczas urządzania Twojego wymarzonego domu!
Książeczka z rabatami do takich firm jak: Komfort, Domino Łazienki, Fachowiec, Vox, Komandor, Witek Home i innych
Gwarancja
bezpiecznych zakupów
Dodatkowe pakiety projektowe
- Kosztorys inwestorski cena ustalana indywidualnie
- Wentylacja mechaniczna z rekuperacją 700,00 zł
- Wentylacja mechaniczna + GPWC 700,00 zł
- Kolektory Słoneczne 400,00 zł
- Panele Fotowoltaiczne 400,00 zł
- Pompa Ciepła 500,00 zł
- Kominek z DGP 400,00 zł
- Biologiczna oczyszczalnia ścieków 150,00 zł
- Centralny Odkurzacz 300,00 zł
- Szambo przydomowe 200,00 zł
- Dodatkowy egzemplarz projektu 150,00 zł