Dane techniczne
- Powierzchnia użytkowa 162.17 m²
- Powierzchnia zabudowy 175.24 m²
- Kubatura 698.49 m³
- Kąt nachylenia dachu 44.00°
- Powierzchnia dachu 202.60 m²
- Wysokość budynku 8.93 m
- Min. wymiary działki 22.50x24.70 m
- Garaż 36.81 m²
- Pracownia Archipelag
Technologia budowy
Dom zaprojektowany w technologii murowej (częściowo ściana trójwarstwowa), ze stropem gęstożebrowym. Schody wewnętrzne żelbetowe. Dach o konstrukcji drewnianej pokryty dachówką płaską lub o podobnych parametrach. Elewacje wykończono tynkiem mineralnym i cegłą klinkierową. Stolarka okienna drewniana lub PCV.
Opis
Dom parterowy z poddaszem użytkowym, z garażem jednostanowiskowym, niepodpiwniczony, przeznaczony dla 4-6 osobowej rodziny. Na parterze zaplanowano strefę dzienną: wygodną kuchnię z centralnie usytuowaną wyspą, spiżarnię, salon z kominkiem oraz jadalnię. Umiejscowiono tu także gabinet oraz małą łazienkę. Na parterze znajduje się również kotłownia i garaż. Na półpiętrze zaprojektowano strych mogący pełnić rolę dodatkowego pokóju. Strefa nocna mieści się na poddaszu. Tworzą ją trzy sypialnie, garderoba, łazienka i pralnia. Dom Tymoteusz imponuje swoją rozbudowaną przestrzenią możliwości. Układ funkcjonalny rozplanowano na trzech poziomach, wykorzystując również przestrzeń nad garażem, którą w zależności od potrzeb domowników można przeznaczyć na strych lub wyciszony, odosobniony gabinet lub komfortową sypialnię dla gości Od strony ogrodowej zaplanowano rozległy taras z elegancką, drewnianą wiatą. Architektura domu to udane połączenie tradycji z nowoczesnością. Ascetyczna biel tynku, wzbogacona cegłą klinkierową w ciepłej tonacji tworzy harmonijne, szykowne dopełnienie całości. Istnieje możliwość: - podpiwniczenia budynku - zbliźniaczenia
Rzuty
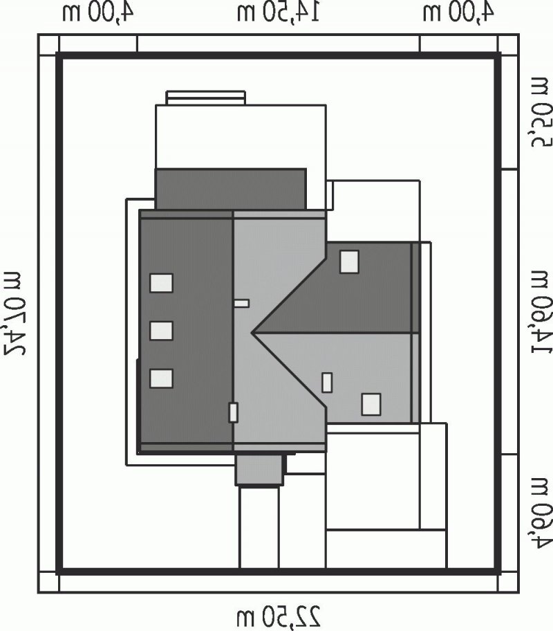
PARTER
- Wiatrołap 4.57 m2
- Hol 11.20 m2
- Kuchnia 15.39 m2
- Spiżarnia 1.70 m2
- Pokój dzienny jadalnia 42.87 m2
- Gabinet 13.86 m2
- Łazienka 3.38 m2
- Kotłownia 5.26 m2
- Garaż 36.81 m2
PODDASZE
- Korytarz 8.30 m2
- Sypialnia 14.27 m2
- Sypialnia 14.52 m2
- Sypialnia 13.83 m2
- Łazienka 7.96 m2
- Garderoba 2.90 m2
- Pralnia 3.42 m2
- Korytarz 4.00 m2
- Strych 17.73 m2
Rzuty
PARTER
- Wiatrołap 4.57 m2
- Hol 11.20 m2
- Kuchnia 15.39 m2
- Spiżarnia 1.70 m2
- Pokój dzienny jadalnia 42.87 m2
- Gabinet 13.86 m2
- Łazienka 3.38 m2
- Kotłownia 5.26 m2
- Garaż 36.81 m2
PODDASZE
- Korytarz 8.30 m2
- Sypialnia 14.27 m2
- Sypialnia 14.52 m2
- Sypialnia 13.83 m2
- Łazienka 7.96 m2
- Garderoba 2.90 m2
- Pralnia 3.42 m2
- Korytarz 4.00 m2
- Strych 17.73 m2
Dbamy o swoich Klientów, jak nikt inny!
Do każdego projektu zakupionego za pośrednictwem serwisu kreoDOM.pl otrzymasz książeczkę z rabatami na zakupy w firmach Komfort, Fachowiec, Domino Łazienki, Komandor, Witek Home i innych. Książeczka na pewno okaże się przydatna podczas urządzania Twojego wymarzonego domu!
Książeczka z rabatami do takich firm jak: Komfort, Domino Łazienki, Fachowiec, Vox, Komandor, Witek Home i innych
Gwarancja
bezpiecznych zakupów
Dodatkowe pakiety projektowe
- Kosztorys inwestorski cena ustalana indywidualnie
- Wentylacja mechaniczna z rekuperacją 700,00 zł
- Wentylacja mechaniczna + GPWC 700,00 zł
- Kolektory Słoneczne 400,00 zł
- Panele Fotowoltaiczne 400,00 zł
- Pompa Ciepła 500,00 zł
- Kominek z DGP 400,00 zł
- Biologiczna oczyszczalnia ścieków 150,00 zł
- Centralny Odkurzacz 300,00 zł
- Szambo przydomowe 200,00 zł
- Dodatkowy egzemplarz projektu 150,00 zł