Dane techniczne
- Powierzchnia użytkowa 130.96 m²
- Powierzchnia zabudowy 134.41 m²
- Kubatura 439.20 m³
- Kąt nachylenia dachu 40.00°
- Powierzchnia dachu 198.24 m²
- Wysokość budynku 7.87 m
- Min. wymiary działki 22.00x20.70 m
- Pracownia Archipelag
Technologia budowy
Dach wielospadowy o konstrukcji drewnianej kryty dachówką ceramiczną Röben. Dom zaprojektowano w technologii murowej ze stropem gestożebrowym. Schody wewnętrzne drewniane. Elewacja wykonana z tynku mineralnego oraz okładziny kamiennej. Stolarka okienna drewniana lub PCV.
Opis
Dom parterowy z poddaszem użytkowym, niepodpiwniczony, przeznaczony dla 4-5-osobowej rodziny. Na parterze po lewej stronie znajduje się strefa dzienna: salon z kominkiem otwartą kuchnią i jadalnią a po prawej stronie strefa nocna: dwie sypialnie z łazienką. Pomieszczenie gospodarcze z piecem i pralką dostępne jest z wiatrołapu. Na użytkowym poddaszu znajdują się dwie sypialnie łazienka i garderoba.
Rzuty
PARTER
- Wiatrołap 2.98 m2
- Hol 7.64 m2
- Kuchnia 8.98 m2
- Jadalnia 6.76 m2
- Pokój dzienny 27.19 m2
- Sypialnia 13.29 m2
- Sypialnia 12.46 m2
- Łazienka 5.69 m2
- Kotłownia 4.84 m2
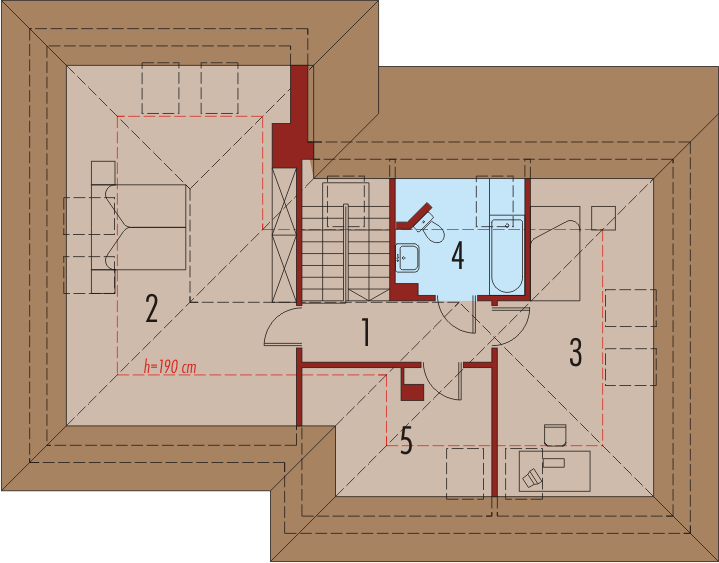
PODDASZE
- Korytarz 5.76 m2
- Sypialnia 21.12 m2
- Sypialnia 10.54 m2
- Łazienka 3.97 m2
- Garderoba 4.58 m2
Rzuty
PARTER
- Wiatrołap 2.98 m2
- Hol 7.64 m2
- Kuchnia 8.98 m2
- Jadalnia 6.76 m2
- Pokój dzienny 27.19 m2
- Sypialnia 13.29 m2
- Sypialnia 12.46 m2
- Łazienka 5.69 m2
- Kotłownia 4.84 m2
PODDASZE
- Korytarz 5.76 m2
- Sypialnia 21.12 m2
- Sypialnia 10.54 m2
- Łazienka 3.97 m2
- Garderoba 4.58 m2
Dbamy o swoich Klientów, jak nikt inny!
Do każdego projektu zakupionego za pośrednictwem serwisu kreoDOM.pl otrzymasz książeczkę z rabatami na zakupy w firmach Komfort, Fachowiec, Domino Łazienki, Komandor, Witek Home i innych. Książeczka na pewno okaże się przydatna podczas urządzania Twojego wymarzonego domu!
Książeczka z rabatami do takich firm jak: Komfort, Domino Łazienki, Fachowiec, Vox, Komandor, Witek Home i innych
Gwarancja
bezpiecznych zakupów
Dodatkowe pakiety projektowe
- Kosztorys inwestorski cena ustalana indywidualnie
- Wentylacja mechaniczna z rekuperacją 700,00 zł
- Wentylacja mechaniczna + GPWC 700,00 zł
- Kolektory Słoneczne 400,00 zł
- Panele Fotowoltaiczne 400,00 zł
- Pompa Ciepła 500,00 zł
- Kominek z DGP 400,00 zł
- Biologiczna oczyszczalnia ścieków 150,00 zł
- Centralny Odkurzacz 300,00 zł
- Szambo przydomowe 200,00 zł
- Dodatkowy egzemplarz projektu 150,00 zł