Dane techniczne
- Powierzchnia użytkowa 138.71 m²
- Powierzchnia zabudowy 140.80 m²
- Kubatura 504.85 m³
- Kąt nachylenia dachu 45.00°
- Powierzchnia dachu 241.64 m²
- Wysokość budynku 9.40 m
- Min. wymiary działki 24.20x20.10 m
- Garaż 21.22 m²
- Pracownia Archipelag
Technologia budowy
Dom zaprojektowano w technologii murowej ze stropem gęstożebrowym. Schody wewnętrzne drewniane. Dach o konstrukcji drewnianej, kryty dachówką ceramiczną. Elewację wykonano z tynku mineralnego, cokół z okładziny klinkierowej. Stolarka okienna drewniana.
Opis
Dom parterowy, z poddaszem użytkowym, niepodpiwniczony, z wbudowanym garażem, przeznaczony dla 4-5-osobowej rodziny. Istnieje również wersja z garażem dwustanowiskowym (Zenobia G2). Na parterze w strefie dziennej, znajduje się duży salon z kominkiem, połączony z jadalnią, kuchnia, spiżarnia, gabinet, pomieszczenie gospodarcze i wc. Na poddaszu znajduje się strefa nocna z trzema sypialniami, łazienką i pralnią.
Rzuty
PARTER
- Wiatrołap 5.63 m2
- Hol 6.96 m2
- Kuchnia 11.42 m2
- Spiżarnia 2.21 m2
- Jadalnia 8.34 m2
- Pokój dzienny 23.29 m2
- Gabinet 9.94 m2
- Toaleta 1.34 m2
- Pom. gospodarcze 4.83 m2
- Pom. gospodarcze 5.46 m2
- Garaż 21.22 m2
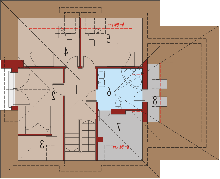
PODDASZE
- Hol 9.22 m2
- Sypialnia 12.92 m2
- Garderoba 2.42 m2
- Pokój 9.67 m2
- Pokój 9.51 m2
- Łazienka 9.09 m2
- Pom. gospodarcze 6.46 m2
- Strych 4.05 m2
Rzuty
PARTER
- Wiatrołap 5.63 m2
- Hol 6.96 m2
- Kuchnia 11.42 m2
- Spiżarnia 2.21 m2
- Jadalnia 8.34 m2
- Pokój dzienny 23.29 m2
- Gabinet 9.94 m2
- Toaleta 1.34 m2
- Pom. gospodarcze 4.83 m2
- Pom. gospodarcze 5.46 m2
- Garaż 21.22 m2
PODDASZE
- Hol 9.22 m2
- Sypialnia 12.92 m2
- Garderoba 2.42 m2
- Pokój 9.67 m2
- Pokój 9.51 m2
- Łazienka 9.09 m2
- Pom. gospodarcze 6.46 m2
- Strych 4.05 m2
Dbamy o swoich Klientów, jak nikt inny!
Do każdego projektu zakupionego za pośrednictwem serwisu kreoDOM.pl otrzymasz książeczkę z rabatami na zakupy w firmach Komfort, Fachowiec, Domino Łazienki, Komandor, Witek Home i innych. Książeczka na pewno okaże się przydatna podczas urządzania Twojego wymarzonego domu!
Książeczka z rabatami do takich firm jak: Komfort, Domino Łazienki, Fachowiec, Vox, Komandor, Witek Home i innych
Gwarancja
bezpiecznych zakupów
Dodatkowe pakiety projektowe
- Kosztorys inwestorski cena ustalana indywidualnie
- Wentylacja mechaniczna z rekuperacją 700,00 zł
- Wentylacja mechaniczna + GPWC 700,00 zł
- Kolektory Słoneczne 400,00 zł
- Panele Fotowoltaiczne 400,00 zł
- Pompa Ciepła 500,00 zł
- Kominek z DGP 400,00 zł
- Biologiczna oczyszczalnia ścieków 150,00 zł
- Centralny Odkurzacz 300,00 zł
- Szambo przydomowe 200,00 zł
- Dodatkowy egzemplarz projektu 150,00 zł